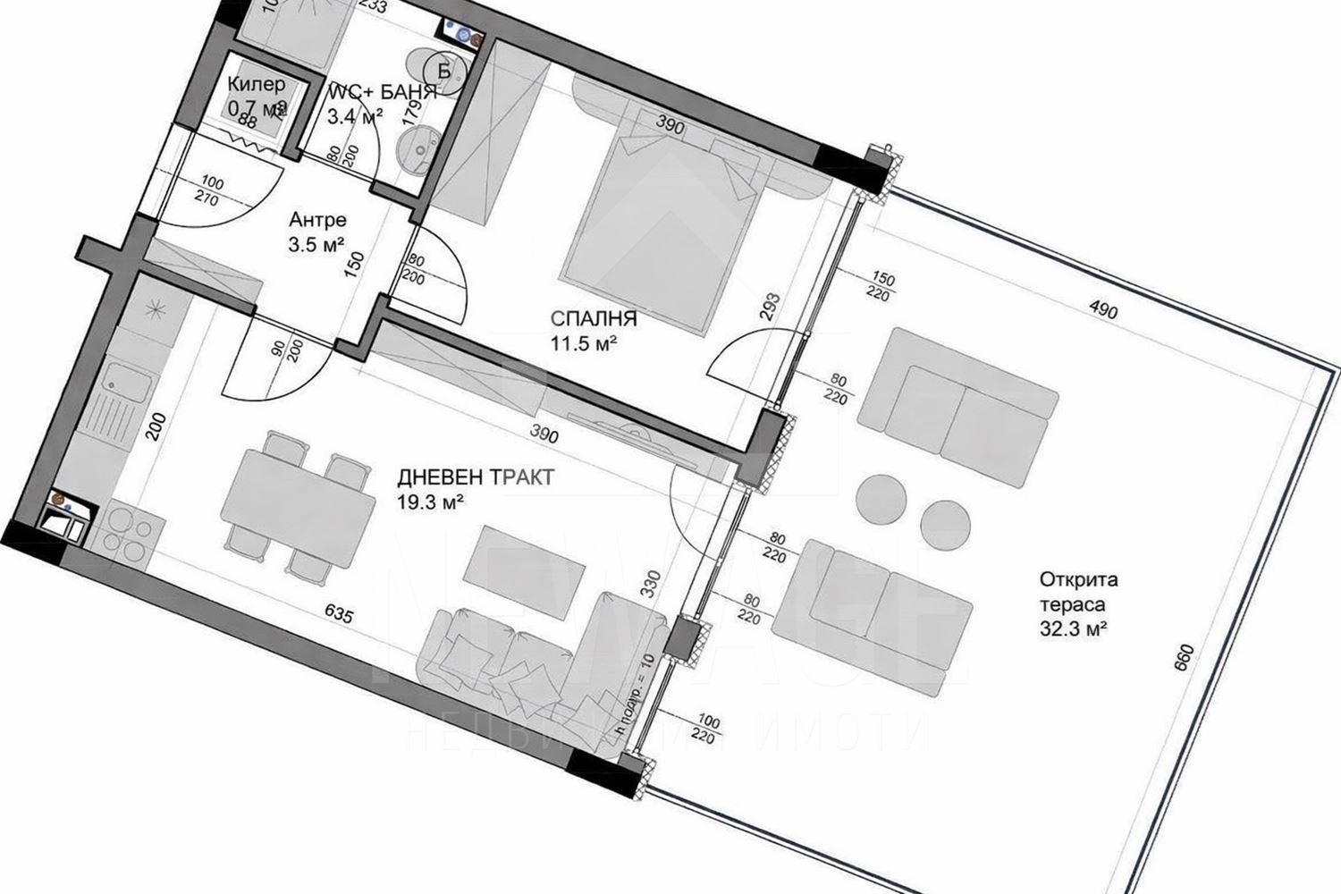
Двустаен апартамент в гр. Варна, кв. Владиславово, в модерна жилищна сграда Фюжън 1 , след Акт 14. Жилището се състои от дневна с кухненски кът, спалня, баня с тоалетна, входно антре, килер и открита тераса. Сградата е осеметажна, с изчистена съвременна архитектура, създаваща усещане за светлина и простор, разположена в облагородена среда със зелени площи, пешеходни алеи и детска площадка. В близост се намират училища, детски градини, болници, спортни обекти, магазини и заведения, което осигурява удобство и комфорт за спокоен и модерен начин на живот.
За повече информация и огледи, обадете се и цитирайте код на оферта 1206.







