Двустаен апартамент с гледка към 'Витоша' последен етаж, кв. 'Витоша', зад комплекс 'Макси'.
БИЛДИНГ БОКС предлага за продажба двустаен апартамент в сграда, разположена непосредствено зад комплекс Макси в кв. 'Витоша'. Сградата е в етап АКТ 14, а АКТ 16 (въвеждане в експлоатация), се очаква до м. Април 2026г.
За сградата:
Сградата ще бъде изпълнена с висококачествени материали минерална мазилка, 15 см топлоизолация, асансьори 'Orona'. Апартаментите ще се предават на шпакловка и замазка, с изводи на тапа.
В сградата се предлагат подземни паркоместа на цена от 30 000 евро.
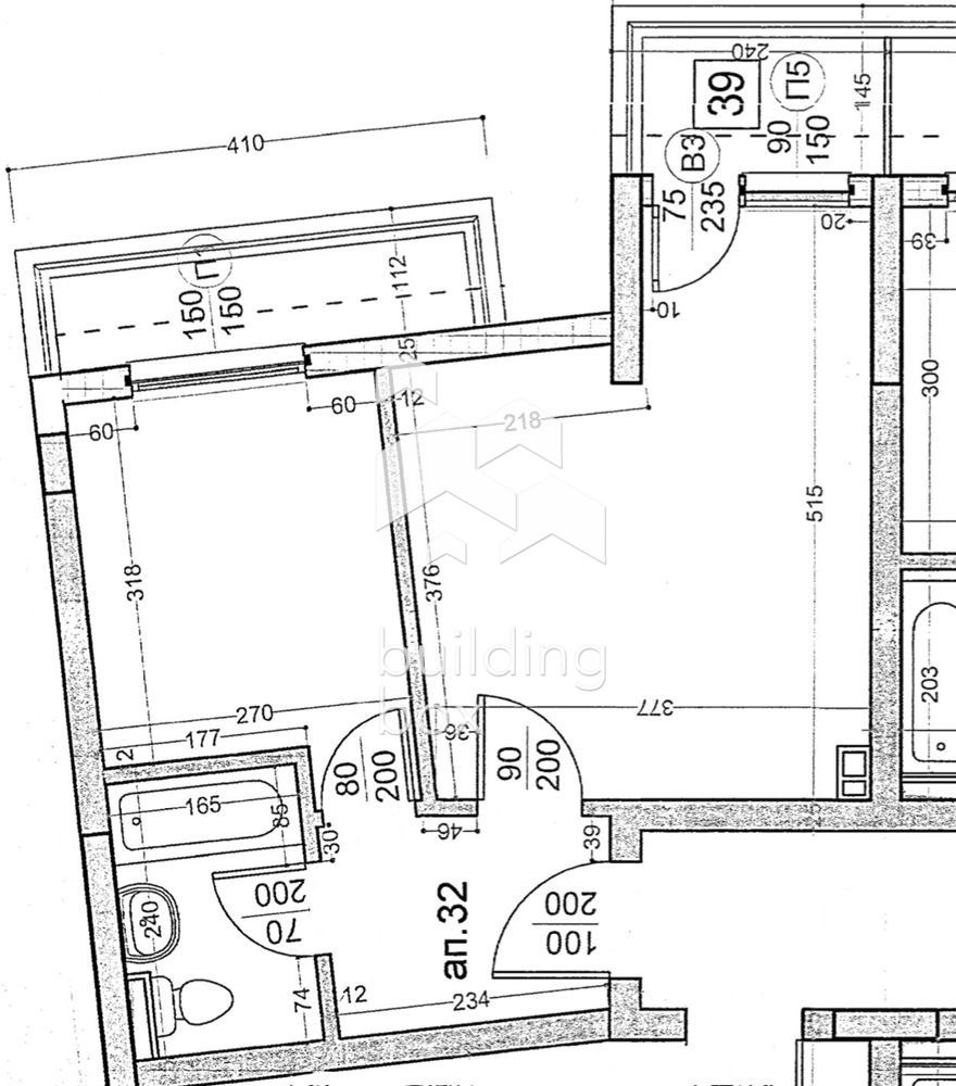
За имота:
Апартаментът се намира на последния 5-ти етаж и е с 41,30 кв.м. светла площ и 48,48 кв.м. обща площ. Изложението е западно с панорамна гледка към 'Витоша'.
Състои се от входно антре, хол с кухня и трапезария, баня с тоалетна и две тераси една с излаз от дневната и една от спалнята.
БИЛДИНГ БОКС предоставя безплатна консултация и съдействие при финансиране на избрания от Вас имот.
Оферта 24443







