ТОПИММО предлага за продажба двустаен тухлен апартамент в новострояща се сграда в кв. Погреби, на пешеходно разстояние от Катедралата. Кокетна сграда с по три апартамента на етаж, изпълнена с качествени материали от строител с богато портфолио.
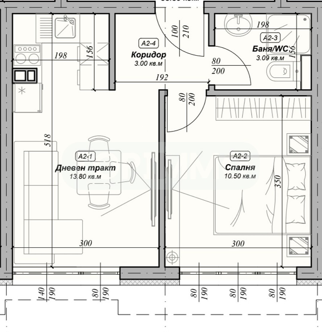
Имотът е разположен на втори етаж от пет в сграда с асансьор, среден апартамент без външни стени, южно изложение и следното разпределение: коридор, всекидневна с кухненски бокс, спалня, санитарен възел и прилежащо избено помещение.
Имотът ще бъде издаден съгласно БДС. Разсрочена схема на плащане. Възможност за закупуване на паркомясто.
Имотът е подходящ за отдаване на нощувки заради близостта си до центъра на града.
Можем да организираме оглед в удобно за вас време, свържете се с нас! Референтен номер: PL-4792







