ДО ДЖЪМБО / ГОТОВА СГРАДА / ДВУСТАЕН СТАТУТ АПАРТАМЕНТ / ИЗЦЯЛО ЮЖЕН /
Николай Николов- 0879 560 900
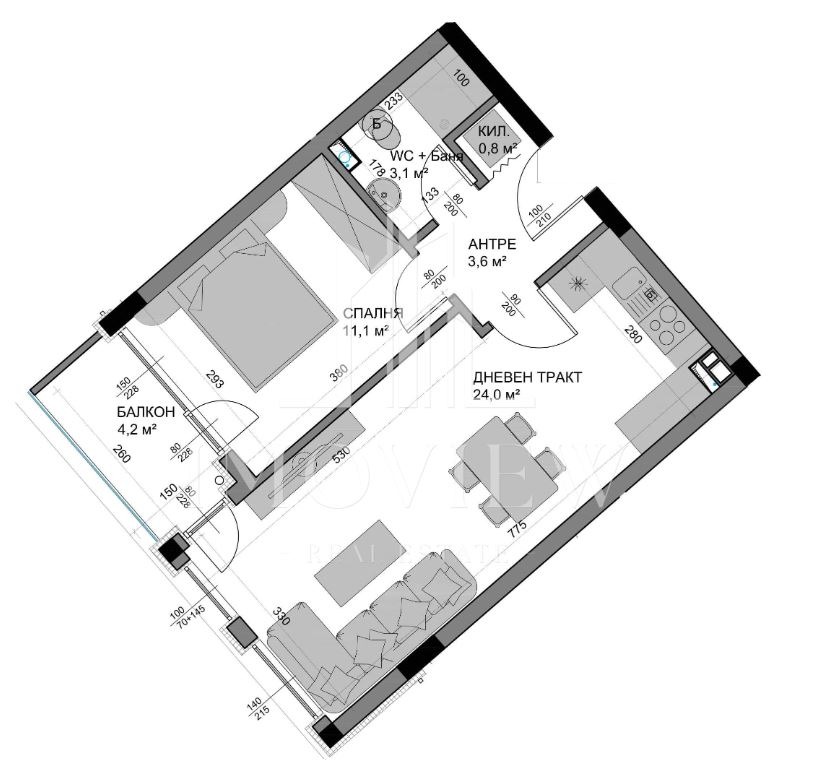
Имотът представлява: Входно антре, дневна с кухненски бокс, спалня, балкон, баня с тоалет и килер.
Локация: Предлага отлично съчетание от спокойствие и удобство! Районът се отличава с добра инфраструктура, близост до училища, детски градини, търговски обекти и удобен градски транспорт, което го прави идеален за живеене или отдаване под наем.
*Като клиенти на агенция 'ImoView' може да се възползвате от селекция избрани услуги:
*Преференциални условия на банково финансиране
*Изготвяне на индивидуален проект и цялостно завършване и обзавеждане
*Достъп до инвестиционен портал с ексклузивни имоти на отлични цени
*Индивидуални оферти за строителни материали и оборудване







