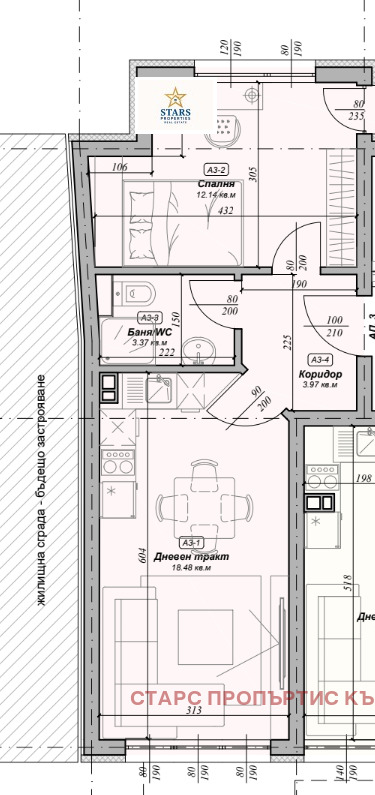
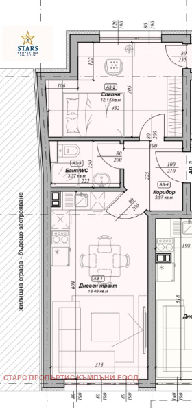
АГЕНЦИЯ СТАРС ПРОПЪРТИС Предлага за продажба двустаен апартамент в новострояща се сграда в кв.Погреби.
Имотът е с площ 60 кв.м
Разпределение:
-коридор
-трапезария с кухненски бокс
-спалня
-баня и тоалет в едно помещение.
Към жилището има прилежащо избено помещение.
Има възможност за покупка на Паркомясто - 25 000
Сградата се намира в централната част на града, в непосредствена близост до магазини, училища и важни транспортни връзки, което я прави идеално място за живеене.
Възможност за разсрочено плащане до две години.Агенцията разполага и с други апартаменти в сградата.
За повече информация и огледи:0894263626







