✅ Оферта 6479
➡️ БРАВА ЕСТЕЙТ Ви представя ДВУСТАЕН АПАРТАМЕНТ ЗА ПРОДАЖБА В НОВОСТРОЯЩ СЕ КОМПЛЕКС КВ. ОСТРОМИЛА
Представяме Ви функционален и просторен двустаен апартамент, разположен в нов модерен жилищен комплекс в бързоразвиващия се квартал Остромила. Имотът е отличен избор както за собствен дом, така и за инвестиция с висока перспектива за растеж.
📍 Локация
Квартал Остромила се утвърждава като предпочитана зона за ново строителство, благодарение на спокойната жилищна среда и удобния достъп до града. Районът се развива динамично, с подобряваща се инфраструктура и изграждане на нови жилищни и търговски обекти.
🏢 Сграда
Новостроящ се комплекс
Модерна архитектура и стилна фасада
4 етажа
Качествено изпълнение на общите части
Очаквано завършване: 2028 г.
Сградата ще съчетава съвременна визия, функционалност и комфорт, отговарящи на всички актуални стандарти за жилищно строителство.
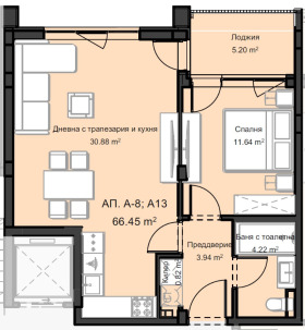
🏠 Параметри на имота
Тип: Двустаен апартамент
Обща площ: 74 кв.м
Етаж: 2-ри от 4
Разпределението е практично и осигурява оптимално използване на площта, с добра осветеност и усещане за простор.
✅ Предимства
Отлична инвестиция в район с нарастваща стойност
Спокойна жилищна среда
Модерна сграда с атрактивен външен вид
Подходящ за млади семейства или отдаване под наем
Възможност за гъвкави схеми на плащане до 2028 г.
Имот с потенциал, съчетаващ комфорт, модерна визия и перспективна локация.
➡️ Предлагаме БЕЗПЛАТНО кредитно посредничество за ипотека, потребителски кредит и рефинансиране!
📞 За повече информация и оглед свържете се с нас!







