ДИРЕКТНО ОТ ИНВЕСТИТОР! БЕЗ КОМИСИОН ОТ КУПУВАЧА! Пред Акт 14 !
Проектът представлява 7-етажна луксозна жилищна сграда с подземен паркинг и с гаражи над терена. Сградата ще осигурява максимално удобство и сигурност на живеещите в нея. Бутиково изпълнение с 26 апартамента, от които ателиета и апартаменти с 1 и 2 спални. За строителството ще се използват само висококачествени материали. Сградата ще бъде изградена на много комуникативно място в ж.к. Банишора. Районът е тих и спокоен. Локацията предоставя изключително лесен достъп до идеалния център на София, спирки на градски транспорт, търговски обекти, училища и до всички части на града.
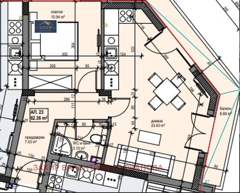
Апартамент 23 е с обща площ 73,94 кв.м., застроена площ 62,36кв.м., мазе - 2,55кв.м. Апартаментите се предлагат в следната степен на завършеност: стени и тавани машинна шпакловка, подово покритие циментова замазка, ПВЦ дограма, блиндирани входни врати, ВиК положени тръби до тапа, отопление. Монтирани ел. ключове и ел. контакти, както и пълно окабеляване.
Предлагаме БЕЗПЛАТНО СЪДЕЙСТВИЕ за одобрение и получаване на ипотечен кредит за покупка на имот при най-добри условия за Вас, чрез услугите на лицензиран кредитен консултант! Допълнителни услуги и следпродажбено обслужване - безкомисионно отдаване на имота под наем, строителни и ремонтни дейности, консултация и проекти с инжинерен дизайнер и ландшафтен архитект.
За повече информация и огледи - тел.(viber): +359884932691 ; [email protected]







