Оферта : 2274
Агенция Trust Broker Solutions предлага на Вашето внимание обзаведен двустаен апартамент в ж.к. 'Гоце Делчев' в близост до зала 'Триада' и с прекрасна гледка към планина Витоша.
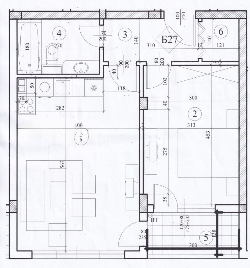
Апартаментът се продава напълно обзаведен, като към него е включен и голям гараж.
ЛОКАЦИЯ:
Намира се в ж.к. 'Гоце Делев' до зала 'Триада'. Южен, спокоен и зелен квартал в район Триадица , граничещ с Южен парк. Перфектен за семейства с деца, в района има изобилие от детски градини, училища и детски площадки.
✅ Метро: 20 минути на пешеходно разстояние се намира метростанция 'България'.
✅ Спирка на градски транспорт: 400 м
✅ Магазин: 140 м
✅ Училище: 350 м
✅ Детска градина: 350 м
СЪСТОЯНИЕ:
Ел. инсталация: Нова
ВиК: Нова
Подови настилки: Ламинат / Гранитогрес
Дограма: PVC
Кухня: Нова / Включена в цената
Обзавеждане: Да
СГРАДА И ВХОД
Състояние на вход: Добро
Контролиран достъп: Да
Саниране: Да
ОСНОВНИ ПАРАМЕТРИ:
✅ Разрешение за ползване (Акт 16) от 2010 г.
✅ Тип строителство: Тухла.
✅ Етаж: 8 от 9.
✅ Асансьор: Да
✅ Чиста площ: 60 м²
✅ Таван / мазе: Не
✅ Балкони: 1 бр.
✅ Отопление: Ток - има инсталиран климатик в дневната.
✅ Вода за битови нужди: Бойлер.
✅ Изложение: Югоизточно.
✅ Паркиране: Гараж - 2 паркоместа са в този гараж, като цената за него е 80 000 евро/ цената е включена към тази на имота. Вратата на гаража няма автоматично затварящ се механизъм.
Агенция Trust Broker Solutions предлага напълно безплатно кредитни консултации. Работим с Credit Navigator - регистрирани в БНБ като независим банков консултант.
За още оферти посетете сайта ни: tbsestates.bg или се обадете на 0878878386 (в работно време) и по всяко време на 0875364181.
Водещ брокер: Емануела Николова







