БИЛДИНГ БОКС предлага за продажба двустаен апартамент в новострояща се жилищна сграда.
ЛОКАЦИЯ: Жилищната сграда се намира в кв. Владиславово. Локация с бърз достъп до главен булевард, спирки на градски транспорт, търговски обекти, медицински центрове.
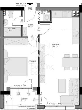
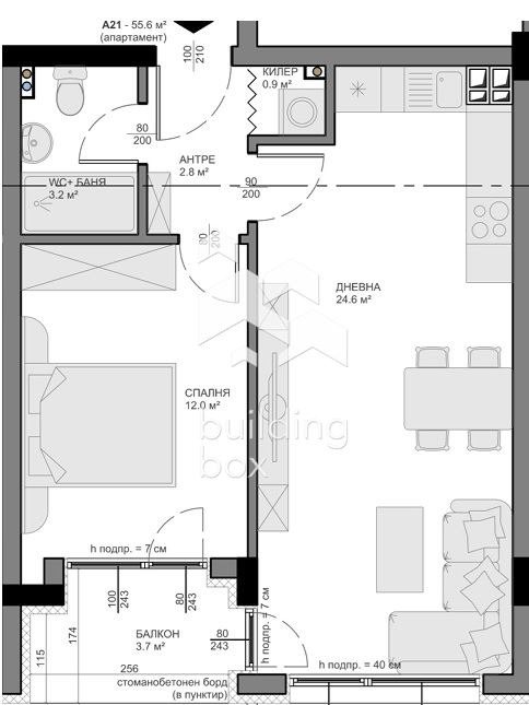
РАЗПРЕДЕЛЕНИЕ: Всекидневна с кухненски бокс с площ от 24.06 кв.м., спалня - 12.00 кв.м., антре, баня и тоалетна, килер, балкон
ЕТАЖНОСТ: Етаж 5 от 5
ИЗЛОЖЕНИЕ: Юг/Изток
ОТОПЛЕНИЕ: Електричество
ПАРКИРАНЕ: Налични подземни паркоместа, гаражи, както и външни паркоместа, които могат да бъдат закупени допълнително.
ЕТАП НА СТРОИТЕЛСТВО: С разрешение за строеж, открита строителна площадка
СГРАДА: Сградата е проектирана на 5 жилищни етажа, с общо 42 апартамента и 2 офиса. Апартаментите разполагат с функционални разпределения.
ИНВЕСТИТОР: Инвеститор с дългогодишен опит и утвърден в сферата на жилищно, промишлено строителство, както и в ремонти на сгради и съоръжения.
Билдинг Бокс предоставя безплатна консултация и съдействие при финансиране на избрания от Вас имот.
Оферта 27388







