Представяме на вашето внимание стилен двустаен апартамент, разположен в предпочитания квартал Зорница в Бургас. Имотът е с обща площ от 71.29 кв. м и предлага съвременен комфорт, идеален за малки семейства.
СГРАДА:
Състои се от 5 надземни етажа и сутерен, където са предвидени паркоместа и гаражи. Сградата ще бъде с модерна визия и висококачествено изпълнение.
ЖИЛИЩЕ:
- Апартаментът е в строеж, като завършването на сградата и приемането са предвидени до месец август 2027 год. Степента на завършеност ще е до тапа .
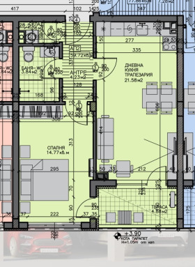
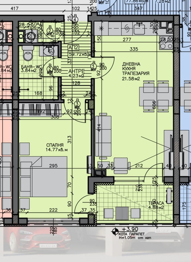
- Застроената площ е 59.72м2, а с общите части е 71.29м2. Състои се от - дневна с обособен кухненски бокс, уютна спалня, антре, склад, баня с тоалетна и тераса.
- Изложението на имота е западно, което осигурява много естествена светлина през целия ден.
ОТОПЛЕНИЕ:
- Отоплението е на електричество, което предлага удобство и ефективност.
- Сградата разполага с асансьор, което улеснява достъпа до апартамента.
ЛОКАЦИЯ:
- Намира се в района на Първа поликлиника.
- Около сградата има налични паркоместа, което е допълнително удобство за живущите. Има и възможност за закупуване на паркомясто.
Цена: 156,828 EUR с разсрочено плащане до завършване на строителството.
Този апартамент е отлична възможност за тези, които търсят модерен и удобен дом в Бургас. Не пропускайте шанса да се запознаете с него! За повече информация и организиране на оглед, свържете се с нас. Вашият нов дом ви очаква!




