Изцяло Южен! Дневна 23 кв.м.! До парка 'Заимов' и метростанция 'Театрална'! Вземи с 10% първоначална вноска!
Референтен код 80369 в www.novdom1.bg!
Консултант недвижими имоти: Калоян Николов, тел. 0890 555 960!
Основни предимства на имота:
Южно изложение;
Неустоима Локация: 500м. до метростанция 'Театрална' и 'Заимов';
Дневна 21кв.м. и НЕпреходна Спалня 15кв.м. Правилни форми на стаите;
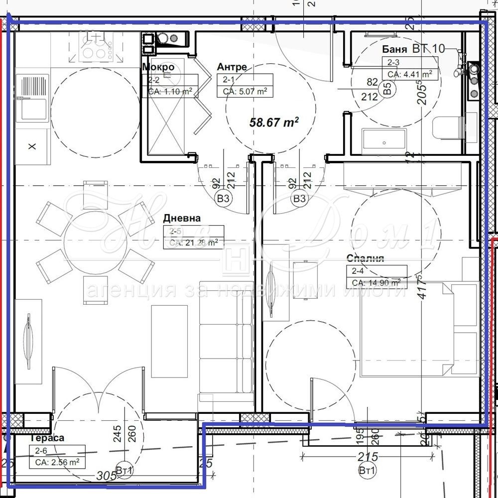
Всичко необходимо за Двустаен: Дневна с Кухня, Спалня, Тераса, Мокро, Баня с Тоалетна и просторно Антре 5.07м2;
Без скосове, Без отстъпи, Без крайни стени;
Опция Гараж или Паркомясто!
Жилището представлява: входно Антре с място за Портманто, изцяло Южен Дневен Тракт с Кухн. Бокс с изход към Тераса, НЕпреходна Спалня отноно на ЮГ, предвидено Мокро/Килер/Дрешник, Баня + Тоалетна с площ 4.40м2.
Статут 'Апартамент'!
Общата площ е 75.22м2, а чистата е 58.67м2
Отоплението е предвидено чрез Термопомпа с Подово!
Опция към имота е да се закупи Паркомясто или Гараж!
Забележка: Приложените снимки, схеми и визуализации са с цел добиване на максимална представа за завършения вид на имота.
Състояние: Предвидено е завършване на шпакловка и замазка + монтирано подово.
Към момента включва: Екстериорна блиндирана врата; Под: нивелирана подова замазка; Стени: машинно-обработена гипсова мазилка с турбозол, висок клас ПВЦ дограма, инсталация за отопление.
Сградата: Луксозно завършени общи части, алуминиеви парапети, Безшумен хидравличен Асансьор, домофонна система за контролиран достъп в сградата.
Отлична локация: район 'Оборище', централната част на София! Намира се само на 500 метра до Метростанция 'Театрална' и парк 'Заимов'! Разположен е на малка тиха уличка без изход. Други близки обекти са Национална музикална академия Проф. Панчо Владигеров , МОЛ 'Сердика', Малък градски театър Зад канала , парк Военна академия , главни пътни артерии и други.
Уважаеми клиенти само и единствено от агенция Нов Дом 1 можете да получите преференциални цени и условия за покупката на този и други имоти в тази сграда.







