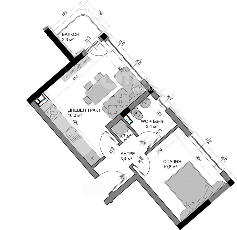
Предлагаме за продажба двустаен апартамент с функционално и добре усвоено разпределение, включващ входно антре, просторна дневна с кухненски бокс, самостоятелна спалня, комбиниран санитарен възел и тераса.
Имотът е разположен в нова сграда в строеж, след Акт 14, изпълнявана от доказан инвеститор с дългогодишен опит и безкомпромисно качество на строителството.
Апартаментът се намира на 8-ми (последен) етаж от 8, в сграда с асансьор, като не е краен, което осигурява по-добър комфорт и енергийна ефективност.
кв. Владислав Варненчик - в близост до Кауфланд и Джъмбо!
Имотът е разположен в нова сграда в строеж, след Акт 14, изпълнявана от доказан инвеститор с дългогодишен опит и безкомпромисно качество на строителството.
Висок етаж, практичен имот, среден апартамент, панорамна гледка!
Обади се сега и цитирай този код 673941







