Агенция 'Имотен Център България' ви предлага 2-стаен апартамент в кв.Овча Купел
Параметри на имота:
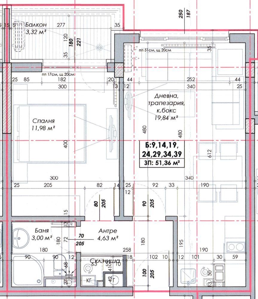
Обща площ: 62,76 кв.м
Чиста жилищна площ: 51,36 кв.м
Етаж: 4
Изложение: Югоизотк
Предлагаме за продажба 2-стаен апартамент, разположен в модерен жилищен комплекс от три. Комплексът разполага с обща сграда, в която ще бъдат изградени ресторант и фитнес, осигуряващи удобство и комфорт за живущите.
Сградата е на етап Акт 14, като до края на 2026 година се очаква въвеждане в експлоатация (Акт 16). Строителството се изпълнява с висококачествени материали, а инвеститорът е доказан, с множество успешно реализирани сгради.
Апартаментите се продават в степен на завършеност шпакловка и замазка. Жилищата са изключително функционални, подходящи както за отдаване под наем, така и за лично ползване.
За повече информация и огледи моля свържете се с отговорния брокер за имота: Максим Дочев







