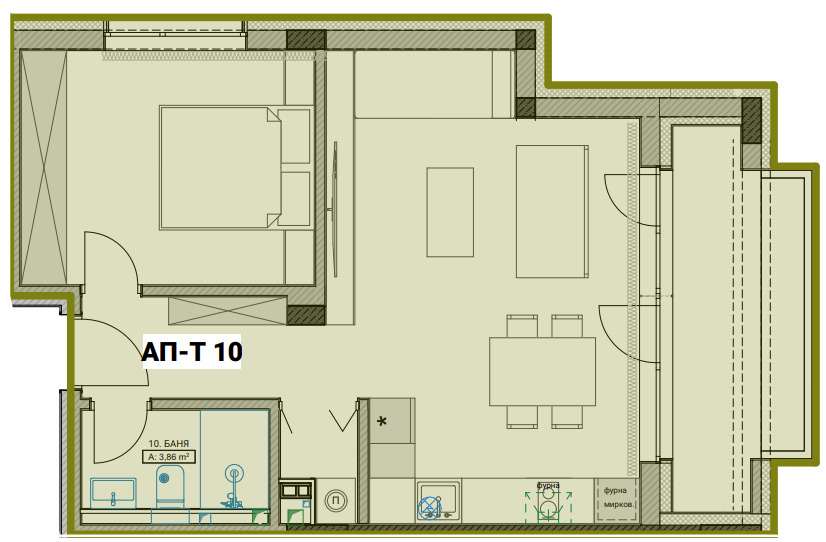
__Апартамент с 1 спалня, с изложение Изток-Севери просторна тераса с гледка към споделения озеленен двор.
Възможност за закупуване на паркомясто и/или подземен гараж.
Сграда 1 е с Акт 14 - Издаден на 05.12.2025
Опция за интериорен проект и изпълнение.
Виж повече на: www.psresidence.com
__PS Park Residence__ e нов жилищен комплекс в сърцето на Здравец, гр. Русе
__Комплексът__ е разположен върху два имота с обща площ 2700м2, и ще се изпълянва на два отделни етапа.
- Сградите заемат едва 30% от площа на имота, като се предвижда озеленен двор за общо ползване с детска площадка.
- Комплексът ще бъде с ограничен достъп и видеонаблюдение
- Обърнато е особено внимание на проектирането и са заложени висок клас строителни материали
- Семпла, прагматична архитектура
Старт на Етап 2 - 2026г. - срок на изп.24м.
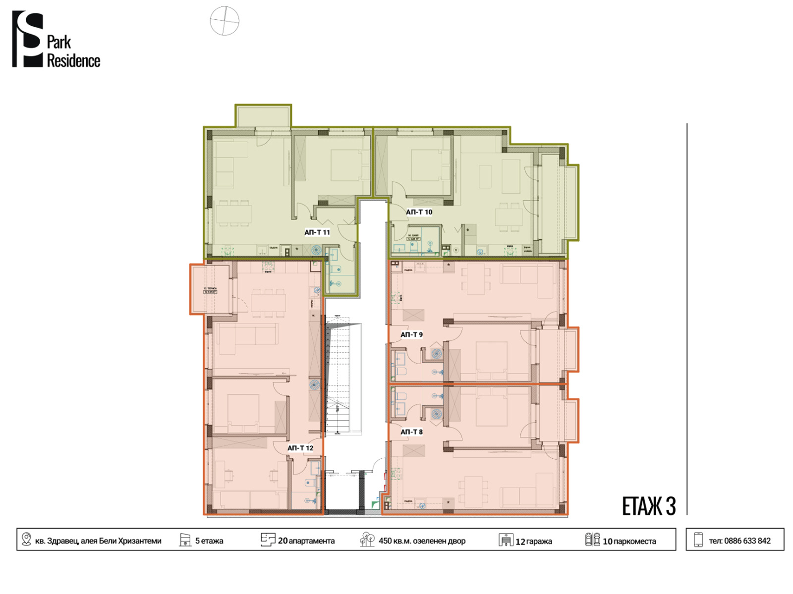
__Сградата се състои от:
5 етажа + сутерен
20 апартамента
900м2 споделен озеленен двор
12 подземни гаража
10 наземни паркоместа
само 13,9% общи части, в които са включени място за паркиране на колелета, стая за детски колички и пом. за обсл.персонал
__Жилища със съвременни удобства__
- смислени и практични разпределения
- големи френски прозорци
- отопление на мултисплит климатици или термопомпи
- А клас на енергийна ефективност
- достъпна среда и 6-местен немски асансьор
- ПВЦ дограма в цвят
- 15см топлоизолационна сиситема
- зидария с керамични блокове Винербергер
- Плоски покриви с TPO мембрани с 30г. гаранция
__Цена - 1350 евро/м2 с вкл. ДДС__
__Продажби от инвеститор без комисионна__
__Офис продажби - ул. Зайчар 9__
__Тел. за връзка - 0886 633 842 - арх.Христина Христова







