НОВА СГРАДА! ГЛЕДКА МОРЕ! СРЕДЕН ЕТАЖ! СРЕДЕН АПАРТАМЕНТ!
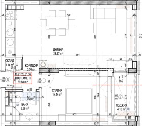
Двустаен апартамент във впечатляващата сграда ХОРИЗОНТИ НОВА, намираща се на ул. Мир, отличаваща се с модерна визия, иновативна архитектура и ПРЕЦИЗНОСТ до най-малкия детайл. В комплекса може да се насладите на озелени ПАРКОВИ ЗОНИ, кътове за отдих и игра. Сградата разполага с две нива подземни гаражни паркоместа с директен достъп от улица Мир. Апартамента е източно изложение и приятна морска гледка, състоящ се от всекидневна, спалня, тераса и баня с тоалет. За повече информация се свържете с нас и цитирайте код: 121551.



