Луксозенен комплекс, който съчетава качество, комфорт, спокойствие, зелени площи и всичко това, сред красива природа близо до столицата.
Предлагаме за продажба: Двустаен апартамент с площ 70 кв.м/ЗП - 59 кв.м/, с южно изложение, находящ се на ет. 4 от 7 етажна сграда.
Разпределение: Дневна с трапезария, спалня, санитарен възел, склад и тераса.
Пред АКТ 14; Очакван Акт 16 - в края на 2027 г.
Комплексът предлага:
- Просторни и светли жилища;
- Функционални разпределения;
- Модерна архитектура;
- Търговски обекти, кафене, детски център и външен фитнес, всичко необходимо за удобството на жителите.
- Барбекю зона за срещи с близки и приятели.
- Красиво озеленени общи части за отдих и релакс.
- 250 подземни и 21 наземни паркоместа, както и зарядна станция за електромобили.
Поради изключителното си местоположение в близост до най-големият съвременен ритейл парк в града, комплексът съчетава кобинация от градски удобства, магазини и търговски обекти, зелена среда, спокойствие и уют.
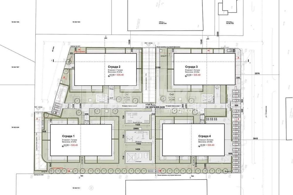
Състои се от четири сгради, модерна визия с висококачествено изпълнение, съобразено с актуалните строителни стандарти.
PVC дограма - K?mmerling, троен стъклопакет;
Входни врати - Солид/SOLID, Dierre;
Отопление - газ и климатици;
Изградена газова инсталация за индивидуални газови котли;
Изградени тръбни пътища за климатиците;
Най-висок клас асансьори Schindler;
Луксозни общи части.
Съвременен жилищен комплекс с отлична локация, бърз достъп до основни пътни артерии, зелени зони и центъра на столицата. Идеален избор за хора, които съчетават динамиката на градската живот, с домашния уют и природна среда.
... Обади се сега и цитирай този код 678358







