За повече информация обадете ни се на тел: 0882 817 499 или 02 425 68 61 и цитирайте референтния номер на имота: Sfa 78547.
Отговорен брокер: Иванка Стойкова
Без комисионна от купувача!
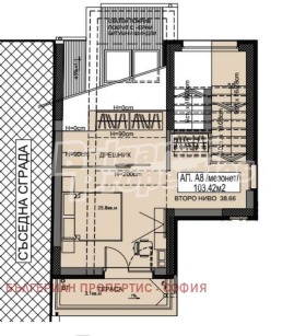
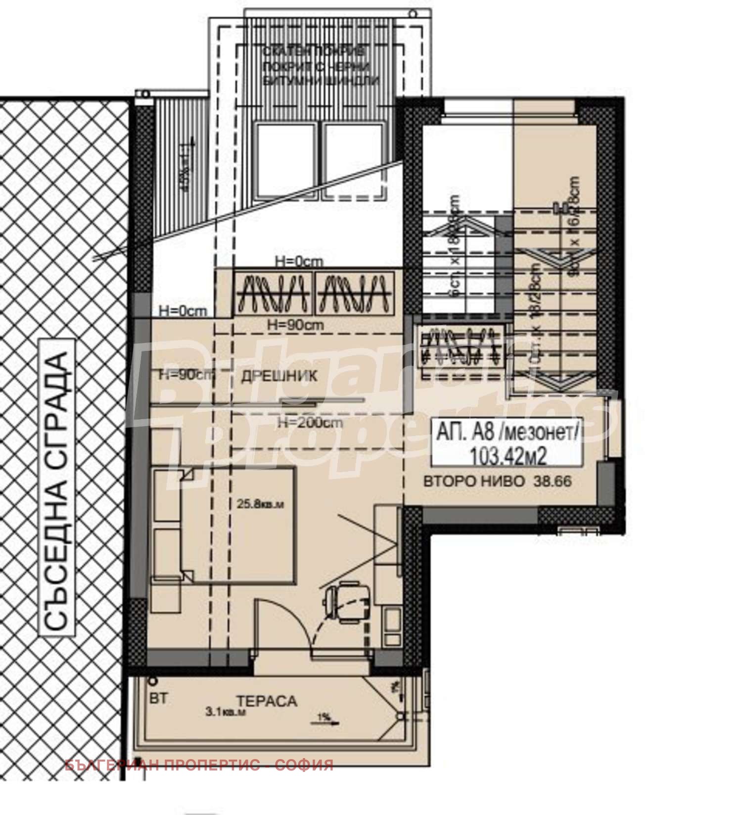
Апартамент A15 , обща площ 136.68 кв.м. (нетна площ 106.79 кв.м. + общи части 29.89 кв.м.).
Представяме на вашето внимание ограничен брой офиси, двустайни и тристайни апартаменти в новострояща се сграда в един от търсените южни квартали на столицата - кв. Бъкстон. В района са осигурени всички съвременни удобства, като в съседство се намират учебни заведения, възловия бул. Цар Борис III, спортно-рекреационен комплекс Славия (фитнес, тенис, футбол, ледена пързалка, конна езда, спа), училища и детски градини, супермаркет Кауфланд, бул. Овча купел, ул. Тодор Каблешков, бул. Братя Бъкстон, полицейски участък, пазар Борово, детски площадки, места за разходка, заведения, спирки на градския транспорт - на 1.2 км от метростанция Красно село (част от третата линия на метрото), с бърз достъп до центъра и Околовръстен път. Срок на завършване - март 2026 г.
Сградата има 2 входа вход 1 Офисна и жилищна част и вход 2 - Жилищна част.
Жилищната сграда заема южната част на имота. Състои се от 8 етажа, с 8 апартамента, 2 гаража и 5 паркоместа в подземен гараж, достъпен от локалното платно на бул. Цар Борис III.
Административната сграда е Г образна, заемаща северозападния ъгъл на имота и югозападния фронт към вътрешна улица. На югоизток се оформя малък двор за озеленяване и паркиране на автомобили. Общо в сградата ще има 58 офиса, 8 гаража, 10 паркоместа. Сградата е с 2 асансьора.
Строителството включва висок клас материали за довършителните работи. Сградата ще има такса поддръжка.
Строителната фирма е участвала в изграждането на множество големи административни, жилищни и курортни сгради, които успешно са въведени в експлоатация, както и на множество по-малки по обем обекти. Водещи в изпълнението на проектите са професионалното отношение към работата, високото качество, прецизността и доверието на доволните клиенти.
Възловото местоположение и близостта до главни пътни артерии гарантират удобния достъп както до центъра, така и до периферията на града, в близост до автобусни спирки и метро, до магазини, аптеки, пазар, училище и редица други ежедневни удобства.
Оглед на имота
Можем да организираме оглед на имота в удобно за вас време. За целта, свържете се с отговорния за офертата брокер и му кажете кога бихте искали да направите оглед.
...







