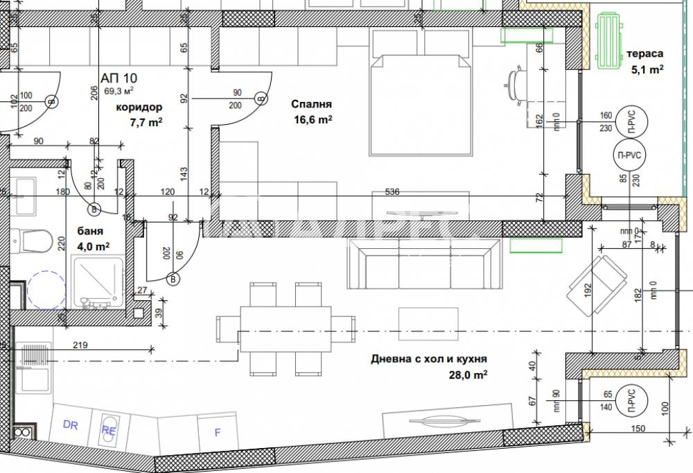
Двустаен апартамент с източно изложение, състоящ се от всекидневна с кухненски бокс, спалня, баня с тоалетна, тераса и мазе. Възможност за закупуване на подземно парко място.
кв. Банишора
Пет етажната сграда разполага с четиринадесет апартамента, източно и западно изложение.
- Седем двустайни, шест тристайни, един четиристаен апартамент.
Площ от 77кв.м до 132кв.м.
Двоен зид от тухли и между тях 5 см звукоизолационна вата. На пода, звукоизолационна подложка против шум, термоизолация 10 см. Сграда с висока енергийна ефективност. Пет камерна дограма с троен стъклопакет. Отопление на ток и при избор може и термо помпа. Висок клас асансьор.
Пешеходно разтояние до центъра на София. В близост има магазини, супермаркети, аптеки, детски градини, училища, спирки на всякакъв градски транспорт и метро.
Обади се сега и цитирай този код 659880







