OXY представя на Вашето внимание двустаен апартамент в новострояща се жилищна сграда.
Имотът е разположен на шести жилищен етаж, непоследен. Няма открити тераси над него.
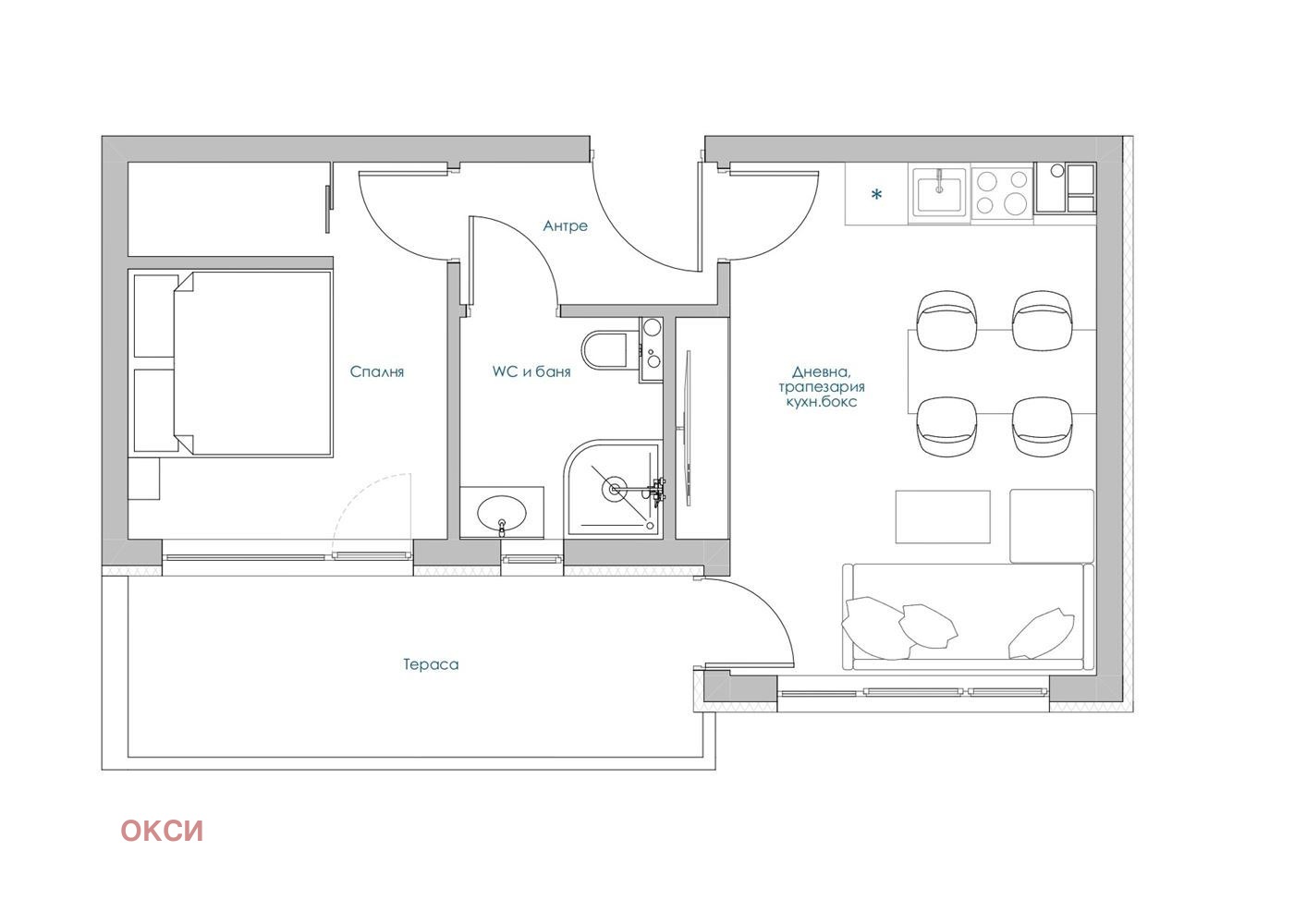
Жилището се състои от хол с кухненски бокс, спалня, баня с тоалетна, антре и просторна тераса с излаз от всяка стая.
Имотът ще бъде завършен до шпакловка и замазка.
Предвидено е сградата да бъде газифицирана.
Сградата се намира на 6 минути пешеходно разстояние от Бургаски свободен университет и Централна автобусна спирка Бургас.
В непосредствена близост се намират също ОУ 'Братя Миладинови', Професионална гимназия по архитектура, строителство и геодезия, Професионална гимназия по механоелектротехника и електроника, Професионална гимназия по туризъм и Детска градина 'Морско конче'.
Има опция за закупуване на подземно паркомясто.
За повече информация и огледи:
Цвета Григорова - брокер
тел: 0888 088 868
e-mail: [email protected]




