💎НАЙ - НОВОТО БИЖУ в град Пловдив - БЕЗ КОМИСИОН ! 💎ОФЕРТА : 17071
Представяме Ви НОВ проект от две модерни жилищни сгради, които съчетават иновации, надеждност и елегантен стил. Тук ще откриете не просто апартамент, а дом, създаден с мисъл за комфорт и качество на живот.
🎯Схема на плащане :
30% при подписване на предварителен договор , остатъка от 70% ще се заплатят когато сградата е готова с АКТ 15.
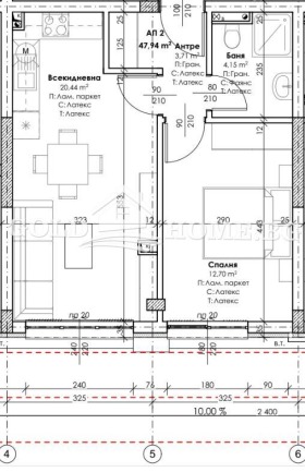
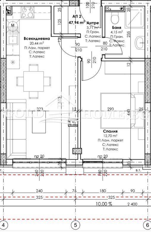
➡️ Разпределение :
Жилището в обява е разположено на партерен етаж в сградата .
Състои се от входно антре , всекиндневна с трапезария и кухненски бокс , спалня , баня с тоалетна.
Към него има и прилежащо избено помещение.
🚗Паркиране :
Има възможност за покупка на:
-Подземни паркоместа;
-Надземни паркоместа;
-Партерни гаражи.
✔️Степен на завършеност :
-Жилищата ще бъдат издадени по следния начин:
-Стени и тавани гипсова мазилка; Под циментова замазка;
-Висок клас дограма с троен стъклопакет
-Тераса гранитогрес и стъклени парапети
-Входна врата блиндирана, MDF;
-Изградени Електро инсталация с монтирани ключове и контакти и ВиК инсталация до тапа;
-Подготовка за видеодомофон, кабелна телевизия и интернет;
-Фасада топлоизолация; цветна мазилка; облицовка от няколко вида камък.
-Общи части на сградата напълно завършени общи части с гранитогрес, осветление и контрол на достъпа.
📅Срокове на изпълнение :
Пусков срок - края на 2027 година.
✔️За строителството :
Пример за модерно и иновативно строителство в България.
В процеса на изграждане ще се използват най-новите технологии и системи, сред които PERI DUO и PERI SKYDECK, които гарантират бързина, сигурност и прецизност в изпълнението.
В материалите са заложени водещи компании като Wienerberger и Baumit, както и материали от най-висок клас, които допринасят за дълготрайността и високото качество на сградата.
📍Локация :
Сградата е ситуирана в един от най-бързоразвиващите се райони на града кв. Кършияка, отличаващ се с удобни транспортни връзки, модерна инфраструктура и динамична среда.
🔑 Изберете дом, който съчетава престиж, стил и сигурност създаден да бъде Вашето ново любимо място в Пловдив!
➡️'ГОЛД ИМОТИ' Ви предлага, да се възползвате от професионално кредитно посредничество чрез Credit Center при ипотека, потребителски кредит и рефинансиране!
-УЛУГАТА Е ИЗЦЯЛО БЕЗПЛАТНА!
-ИЗГОТВЯНЕ НА НЯКОЛКО ОФЕРТИ ОТ ВОДЕЩИ БАНКИ!
-НАЙ-ИЗГОДНИ УСЛОВИЯ СПРЯМО ВАШИЯТ ПРОФИЛ!
-НЕ Е НЕОБХОДИМО ДА СЕ РАЗКАРВАТЕ ВЪВ ВСЕКИ КЛОН НА РАЗЛИЧНИ БАНКИ!
➡️ Още атрактивни и актуални оферти може да разгледате на нашият сайт : goldhome.bg
➡️ За повече информация и при интерес за оглед, моля свържете се с нас!







