УТВЪРДЕН ИНВЕСТИТОР! РАЗСРОЧЕНО ПЛАЩАНЕ! СТАТУТ НА АПАРТАМЕНТ!
Пропърти Зоун Варна ви предлага двустаен апартамент в новострояща се сграда.
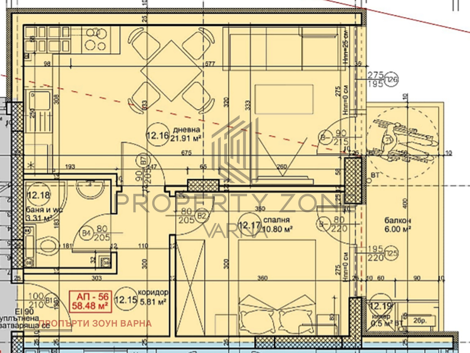
Имотът е без отстъпи, изцяло покрит и има следното разпределение: коридор, дневна, спалня, баня-тоалет, балкон и килер, издава се по БДС, като има опция за завършване '' ДО КЛЮЧ ''.
Възможност за закупуване на подземно паркомясто към имота.
Сградата е ситуирана в непосредствена близост до парк Възраждане, магазини, аптеки, фитнес, автобусни спирки и др.
За повече информация и огледи 0897 57 44 99 - Дженгиз Ибрямов!



