Агенция SUPRIMMO: www.suprimmo.bg
Предлагаме за продажба двустаен апартамент на втори етаж в нова жилищна сграда с Енергиен клас А , разположена на ул. Академик Константин Пашев , в една от най-предпочитаните части на кв. Овча купел 2.
Имотът е с югоизточно изложение, което осигурява естествена светлина през целия ден и комфортна среда за живеене.
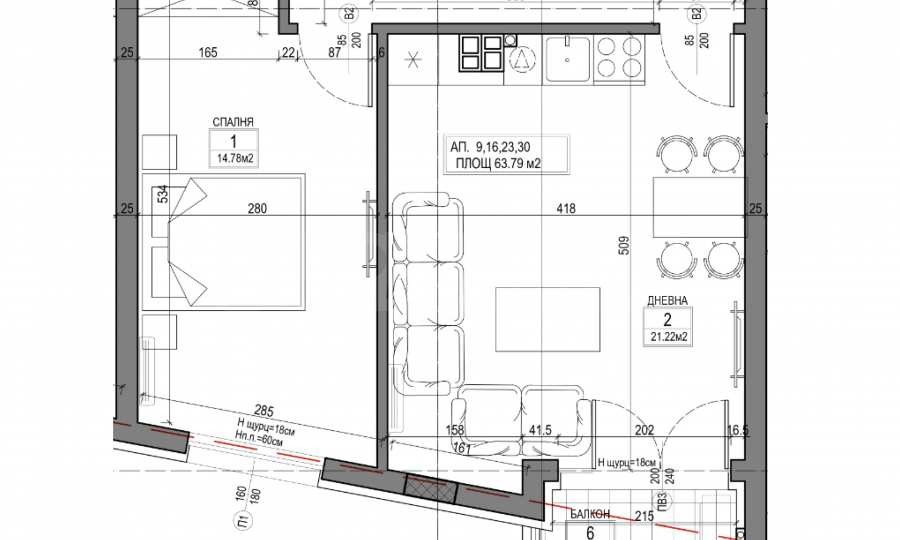
Разпределение:
Хол с кухненски бокс и излаз на тераса функционално пространство за ежедневие и отдих
Спалня с правилна форма
Баня с тоалетна
Склад, осигуряващ допълнително място за съхранение
Локация
Сградата се намира в непосредствена близост до ул. Монтевидео , на пешеходно разстояние от метростанция Мизия .Близо е до НБУ, училища, детски градини и медицински заведения, магазини и услуги за ежедневен комфорт в района
Качество на строителството
Проектирана с внимание към детайла и дългосрочния комфорт:
Стоманобетонова конструкция, отговаряща на всички сеизмични изисквания;
Керамични тухли KEBE и 10 см EPS топлоизолация;
6-камерна PVC дограма с троен стъклопакет;
Луксозно завършени общи части;
Висок клас испански асансьор ORONA;
Комфорт и енергийна ефективност:
Сградата ще е с изградена инсталация за газово отопление и изградена система за охлаждане чрез сплит климатици.
Паркиране:
Има възможност за закупуване на подземни паркомяста на цени започващи от 27,000 Евро с включено ДДС
Гъвкави схеми на плащане, включително възможност за покупка с ипотечен кредит.
Цената на апартаментите зависи от избрания начин на плащане:
Вариант 1
30% при предварителен договор
30% при достигане на съответната кота
30% при Акт 14
10% при Акт 15
Вариант 2
40% при предварителен договор
30% при достигане на съответната кота
20% при Акт 14
10% при Акт 15
Вариант 3
20% при предварителен договор
30% при достигане на съответната кота
30% при Акт 14
20% при Акт 15
Срокове на изпълнение
Старт на строителството: 02/2026 ...
За повече информация свържете се с нас и цитирайте референтния номер на имота. Моля, кажете, че сте видeли обявата в този сайт.
Референтен номер: RL 137378
Тел: 0988 170 838, 02 454 12 52
Отговорен брокер:Орлин Орестов







