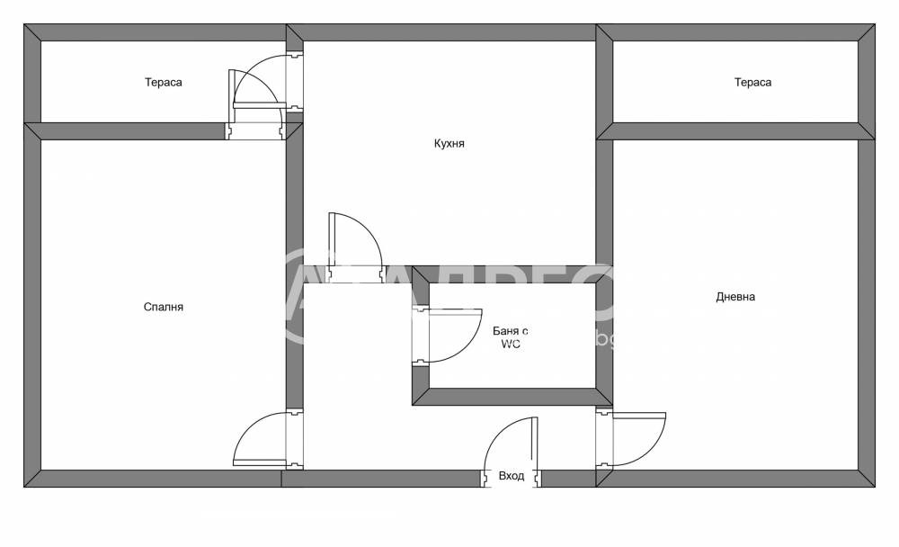
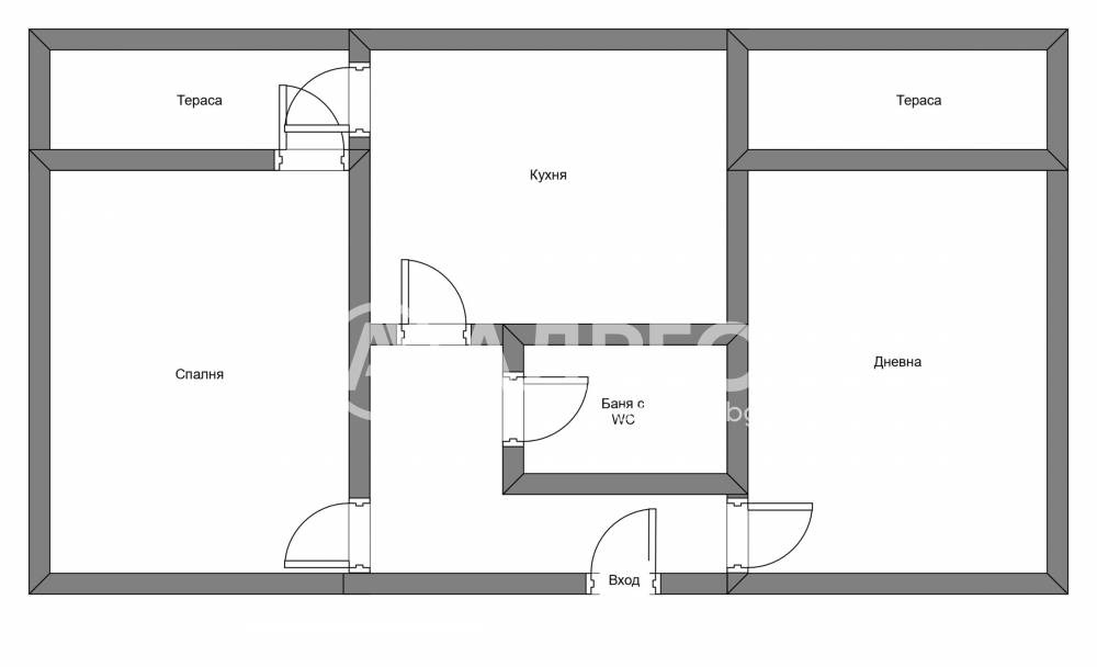
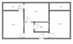
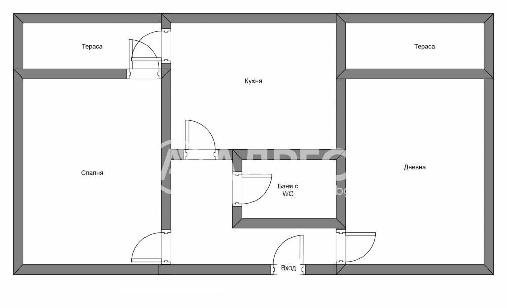
Двустаен апартамент в кв. Толстой, подготвен за преустройство в тристаен.
Южен с много светли три помещения - две просторни стаи с две големи остъклени тераси към тях и кухня, с излаз на тераса, баня с тоалетна, мазе, коридор с голям вграден гардероб
Възможно преустройство в тристаен, ПВЦ дограма.
Локация, пространство, изложение, състояние, на 7 мин. пеша от метростанция Хан Кубрат, близо до главни пътни артерии, без да граничи с активни и шумни улици.
Всички удобства на градския живот.
Панелна сграда от 1981 г. с добре поддържани общи части.
Няма големи булеварди около сградата. В тиха част на квартала на 5 мин. пеша от метростанция Хан Кубрат
Локация, пространство, изложение, състояние, на 7 мин. пеша от метростанция Хан Кубрат, близо до главни пътни артерии, без да граничи с активни и шумни улици.
Всички удобства на градския живот.
Обади се сега и цитирай този код 681418







