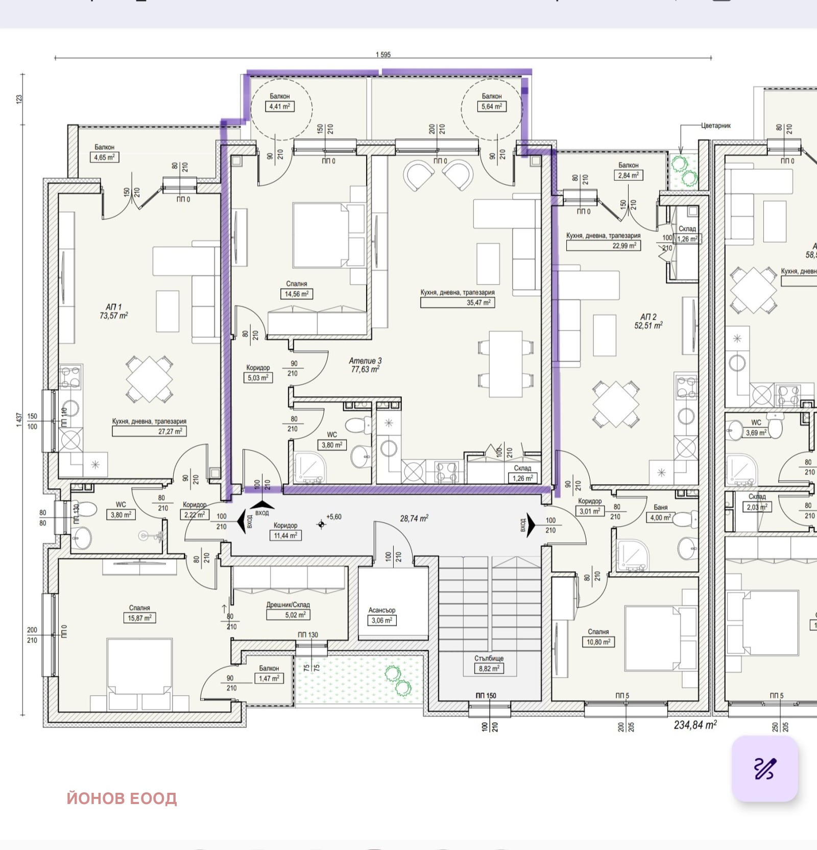
ЙОНОВ ЕООД предлага просторен 2-стаен апартамент на трети жилищен етаж с гледка към морето и Странджа планина.
- Само на 400м от Северния плаж и 600м от центъра на Приморско
- малка сграда с 14 апартамента.
- Отлично разпределение
- Високо качество на строителство
- Енергоспестяващи материали
- Подходящ за живеене и инвестиция
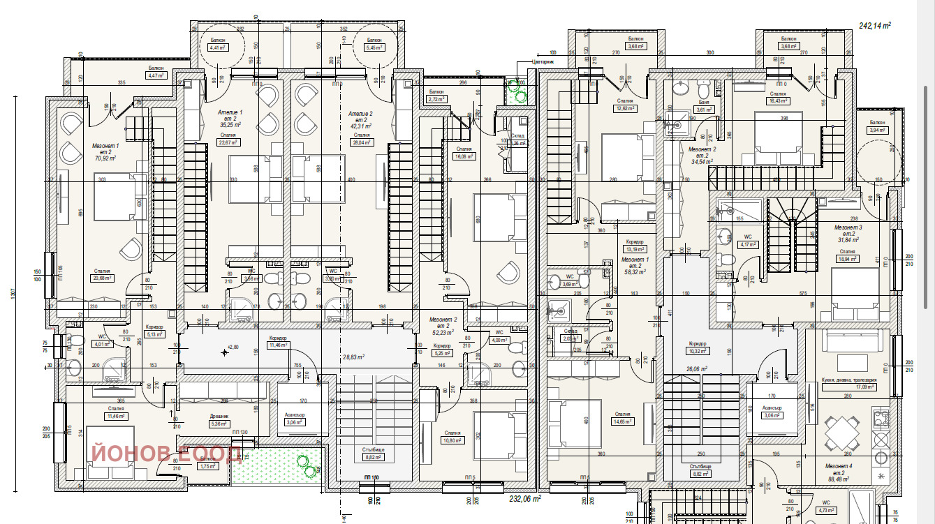
Предлагаме разнообразие от апартаменти и мезонети тип къща в предстоящ строеж на ул.Изгрев. Намира се на 400м от северния плаж на Приморско с прекрасна гледка към морето. Освен качествено строителството, при нас ще намерите изгодни условия и гъвкави схеми на плащане. Опция за довършване до ключ.







