B&W Realty Ви предлага за продажба двустаен апартамент в новостроящ се жилищен комплекс с АКТ 14, разположен в ж.к. Младост, гр. Варна един от най-търсените и удобни райони за живеене и инвестиция.
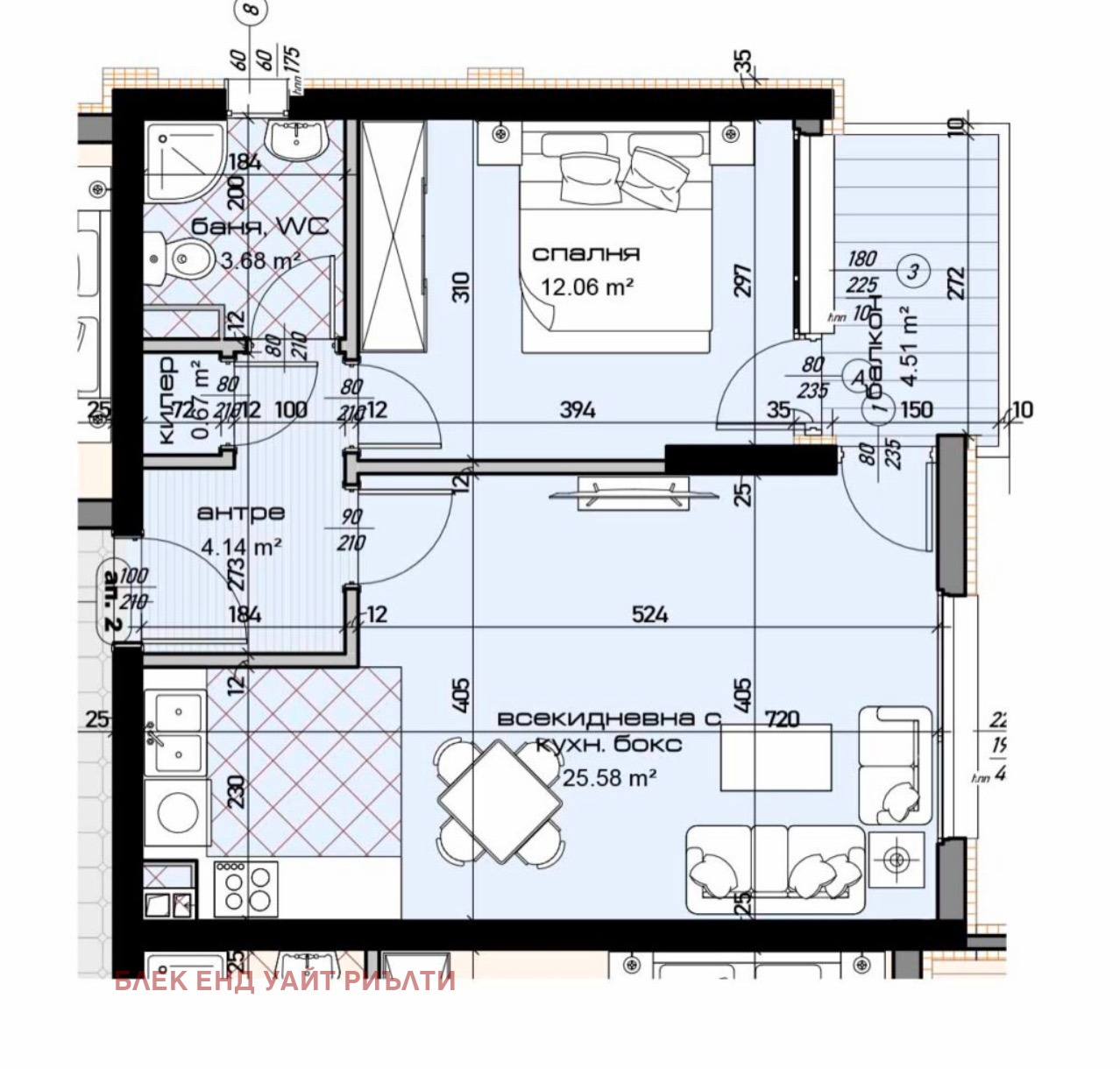
Апартаментът се намира на 2-ри етаж от общо 18 етажа и разполага с функционално и добре балансирано разпределение, осигуряващо комфорт и практичност в ежедневието.
Основна информация за проекта:
Срок за въвеждане в експлоатация: началото на 2028 г.
Етап на строителство: кота четвърти етаж
Схема на плащане: разсрочено плащане до завършване на строителството
Ипотечно кредитиране: възможно след АКТ 14
Цени: без индексация
В комплекса се предлагат и други двустайни и тристайни апартаменти с различни квадратури и етажност:
Сграда 1 налични 18 апартамента
Сграда 2 налични 24 апартамента
За удобство на живущите е осигурено паркиране с:
14 открити паркоместа
8 закрити паркоместа
Жилищата в комплекса се отличават с правилни форми на помещенията, функционални разпределения и комфортна жилищна среда, което ги прави отличен избор както за собствено ползване, така и за сигурна инвестиция.
📞 Не се колебайте да се свържете с нас на посочения телефон за повече информация и организиране на оглед.



