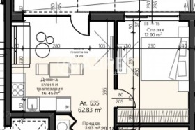
Двустаен, просторен апартамент /ателие/ в кв. Сарафово, гр. Бургас. Площ на имота 73,63 кв. м., етаж 5 от 5, асансьор. Разположение: дневна с кухненски кът и трапезария с тераса, спалня и баня с тоалетна.
Към всеки имот може да бъде закупен ГАРАЖ от 23 000 или ПАРКОМЯСТО 14 - 17 000 евро.
Отлична инфраструктура и удобен достъп до центъра на Бургас и Летище Бургас.
Строителният процес на сградата започва м. юни 2025 г. и ще продължи 24 месеца.
Гъвкави финансови условия.
Обади се сега и цитирай този код 681348







