БИЛДИНГ БОКС предлага 2-стаен апартамент в проект 'Чар', ж.к. 'Люлин 8' - нова модерна тухлена сграда, която ще бъде въведена в експлоатация през 2028 г.
Предимства на проекта:
1. Сграда с 59 апартамента: двустайни, тристайни и ателиета;
2. Изключително сигурен и доказан строител с безупречна репутация и многобройни реализирани обекти (офиси, магазини, апартаменти и гаражи);
3. Липса на индексация в договорите;
4. Изпълнение с висококачествена минерална мазилка;
5. Френски прозорци с трислоен стъклопакет;
6. Асансьори 'KONE' за 8 10 човека;
7. Ново тухлено строителство с очакван акт 16: края на 2028 г.;
8. Функционално и комфортно разпределение;
9. Подходящо за лично ползване и инвестиция.
Имот:
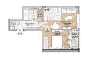
Апартаментът е със застроена площ от 50.09 кв.м и е с изложение изток.
Разположен на партерен етаж от общо 9 Отопление: ТЕЦ.
Разпределение:
- Хол с кухненски бокс;
- Спалня;
- Баня с тоалетна;
- Входно антре;
- Тераса;
- Склад
Има опция и за закупуване на паркомясто или гараж с цени от 18 500 евро.
?БИЛДИНГ БОКС предлага всички останали свободни апартаменти в сградата и може да предложи презентация на целия проект в наш офис.
БИЛДИНГ БОКС предоставя безплатна консултация и съдеиствие при финансиране на избрания от Вас имот.
Оферта 28383







