Предлагаме двустаен апартамент в сграда в процес на строеж, част от комплекс от 4 нови жилищни сгради с вътрешна озеленена площ и място за игра среда, която съчетава удобството на градската локация с усещане за по-подредено и спокойно ежедневие.
Имотът се намира в район над Медицински университет, на бул. Европа , в близост до Практикер, Домко, Техномаркет, Декатлон и други търговски обекти. Локацията е практична както за лично ползване, така и за инвестиция, тъй като осигурява бърз достъп до основни пътни връзки, учебни зони, търговска среда и ежедневни удобства.
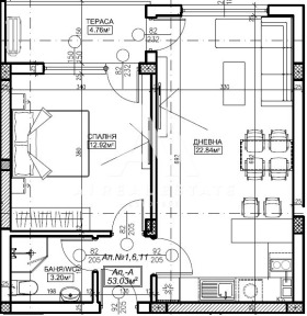
Апартаментът е разположен на 2-ри етаж от 5, с обща площ 59.51 кв.м. и застроена площ 53.03 кв.м., със западно изложение. Сградата е пред АКТ 14, очакван в рамките на няколко месеца.
Основни характеристики:
Тип имот: двустаен апартамент
Площ: 59.51 кв.м.
Застроена площ: 53.03 кв.м.
Етаж: 2 от 5
Изложение: запад
Състояние: в процес на строеж
Етап: пред АКТ 14
Отопление: ТЕЦ, с възможност за климатици по желание
Разпределение:
Дневна с кухненски бокс
Спалня
Обща тераса
Баня с тоалетна
Допълнителни възможности:
Възможност за закупуване на паркомясто
Възможност за банково финансиране чрез партньорски банки
Предимства:
Част от нов жилищен комплекс с озеленена вътрешна среда
Подходящ както за живеене, така и за инвестиция
Удобна локация в близост до Медицински университет и търговска зона
Инвеститор с доказан опит и реализирани проекти с АКТ 16
Този имот е подходящ избор за купувачи, които търсят ново строителство в развиващ се район, с добра перспектива както за обитаване, така и за отдаване под наем.
За повече информация и организиране на оглед, свържете се с нас.
Оферта ЕА20476







