Двустаен апартамент в нова жилищна - бутикова сграда - нов стандарт на живот, кв. Зорница, гр. Бургас.
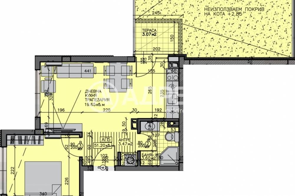
Площ на имота 86,44 кв. м., етаж 2 от 5, асансьор. Разпределение: дневна с кухненски кът с тераса, спалня, баня с тоалетна и складово помещение. Апартаментът ще бъде завършен 'на тапа''.
Към всеки имот може да бъде закупено ПАРКОМЯСТО от 25 000 до 30 000 ЕВРО.
Ограничени възможности за ново строителство в района гаранция за стойност във времето;
Строителният процес на сградата започна м. август 2025г. и ще продължи 24 месеца.
Предимства на проекта
Модерна архитектура;
Енергийно ефективни решения;
Високо качество на вложените материали;
Атрактивни цени и гъвкави схеми на плащане.
Обади се сега и цитирай този код 681162







