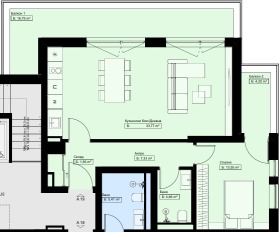
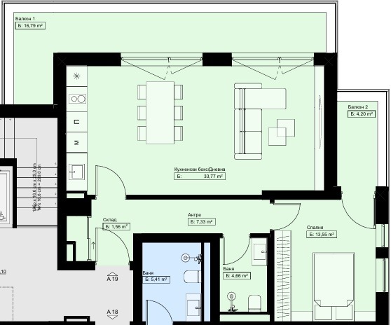
БЕЗ КОМИСИОННА ОТ КУПУВАЧА !!!ТОП МЯСТО!!! Ново строителство на метри от метростанция Обеля ! Голям двустаeн с възможност за преустойство в тристаен апартамент в строеж в малка сграда с модерна визия и съвременна архитектура, непосредствено до спирки на транспорт, множество магазини, училища и детски градини. Апартамент 19 е разположен на 6 ти жилищен етаж с РЗП - 93,47 кв.м., с ЗП от 81,86 кв,м. Разпледеление: входно антре, голяма дневна с кухненски бокс, баня с тоалетна, спалня, склад и 2 панорамни тераса. Възможност за покупка на паркомясто!
Откриване на строителна площадка 09.2025г.
Шпакловка и замазка, асансьор, отопление на ток.
Дограма: с PVC профили с троен стъклопакет







