LUXIMMO FINEST ESTATES: www.luximmo.bg
Имаме удоволствието да Ви представим многофамилна жилищна сграда на 3 надземни етажа с един подпокривен етаж и подземен паркинг с достъп посредством рампа с удобен наклон. С предвидените изцяло озеленен двор (без нито едно паркиране), подземни индивидуални складови помещения, 27 индивидуални гаража - част от които двойни, за нуждите на 22 апартамента, с осигурена мощност за зареждане, сградата предлага изключителен бутиков начин на обитаване, в спокойна среда и функционални разпределения.
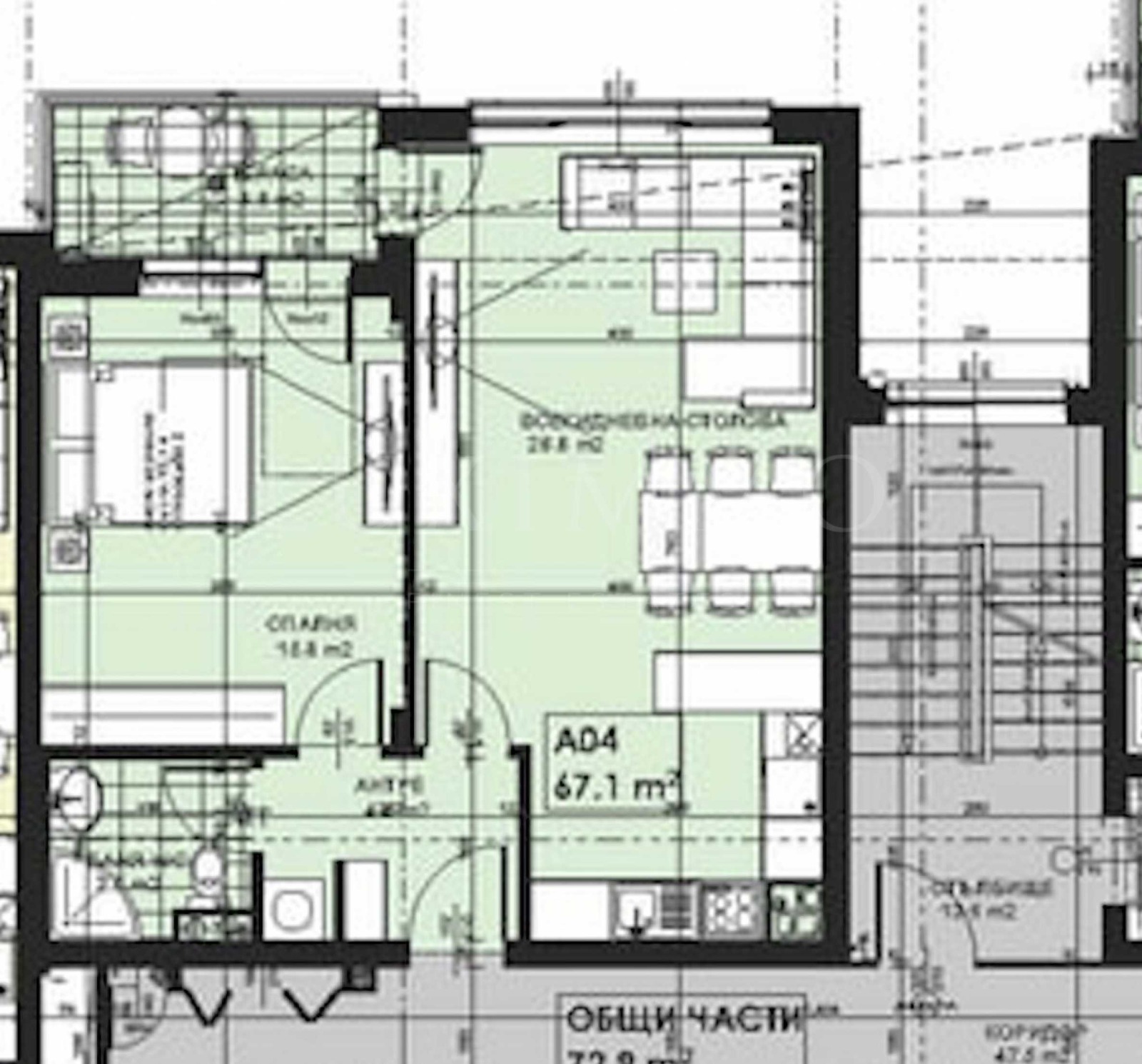
Конкретното предложение е за Апартамент 4 | РЗП: 67.13 м2 | О.Ч.: 8.17 м2 | РЗП С О.Ч.: 75.30 м2, на втори етаж.
Предвиденото отопление на газ, в комбинация градеж и материали - изцяло според съвременните изисквания и норми за енергийна ефективност, осигурява на нашите бъдещи клиенти най-високо ниво на комфорт на живот.
Основни параметри на сградата:
Започване на строителството 03.12.2025 год.;
Общо 22 бр. апартаменти, от които 12 свободни- двустайни и тристайни апартаменти;
Предвидено завършване на сградата в срок и получаване на Удостоверение за въвеждане в експлоатация до 31.05.2027 г. ;
Цени: от 2300 /м2 с ДДС ДО КЛЮЧ!
Технически параметри:
Жилищната сграда е с изградени и узаконени всички външни захранвания водопровод, канал, газ, ел.захранване, както и индивидуални партиди за ток, вода и газ, на името на клиента. Конструкцията на сградата е монолитна, с червени тухли Поротерм - нормал , с най - добрите изолации. Стълбището и коридорите са с настилка монолитен гранит, пътнически асансьор Шиндлер от сутерена до последния етаж, домофонна уредба, входна врата на жил. сграда е Хьорман .
Жилищата се предават с: италиански блиндирани входни врати, с прекодиращ се патрон на бравата, луксозна седемкамерна ПВЦ дограма Кьомерлинг с троен стъклопакет и пълна отваряемост, изградени водомери с радиоотчитане, гранит или гранитогрес по балконите, с отопление с монтирани модерни ...
За повече информация свържете се с нас и цитирайте референтния номер на имота. Моля, кажете, че сте видeли обявата в този сайт.
Референтен номер: Kbs 137199
Тел: 0988 170 858, 02 454 12 72
Отговорен брокер:Димитър Гавазов
Без комисиона от купувача



