JJ Corporation предлага на Вашето внимание двустаен апартамент със собствен двор, разположен на престижната ул.Стар Беловодски път в кв. Бояна.
Имотът е ситуиран в една от най-желаните и зелени части на квартала, район, който впечатлява с тишина, чист въздух и великолепни гледки към планина Витоша и град София. Локацията предлага усещане за уединение и комфорт, без да прави компромис с комуникациите (само на 150 м. се намира бул.България и спирка на градски транспорт).
Сградата е с Акт 16 и разполага с красив, богато озеленен двор, а при строителството са вложени материали от най-висок клас на реномирани марки като Baumit, Wienerberger, Schüco, като фасадата е изпълнена от естествен камък и дърво, което подчертава високия стандарт и премиум визия.
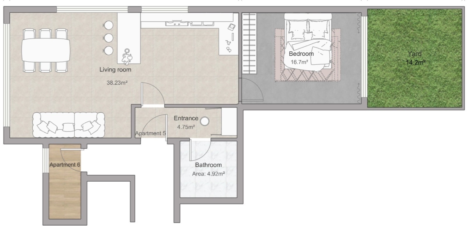
Разпределение: входно антре, днвна с излаз към малък двор, спалня, баня с тоалетна и мокро помещение. Към апартамента може да бъде закупен на допълнителна цена гараж в подземния паркинг - 45 000 евро.
Имотът е предназначен за клиенти, които не биха направили компромис с локацията,качеството на строителство, етажа, обемите, паркирането и тн., и които искат градски тип имот, но с усещането за къща сред много зеленина и прекерасни гледки.
С ключ! Огледи по всяко време, включително през уикенда! Работим с колеги по всички наши оферти! Агенцията ни предлага преференциални условия за отпускане на ипотечен кредит и пълно юридическо съдействие. Водещ брокер: Ясен Джанев - 0888 23 50 63. Оферта номер:242







