Референтен номер: LXH-134580
В процес на строителство.
Очакван Акт 16 - август 2026 г.
Представяме за продажба двустаен апартамент, част от уникален проект на първа линия море, близо до Лозенец. Бутикова жилищна среда с директен достъп до плажа, проектирана за живот в синхрон с морето и планината. Районът се отличава с благоприятен климат през всички сезони, благодарение на уникалната комбинация от морски и планински въздух, осигурена от близостта до Национален парк Странджа .
Покупка без комисиона.
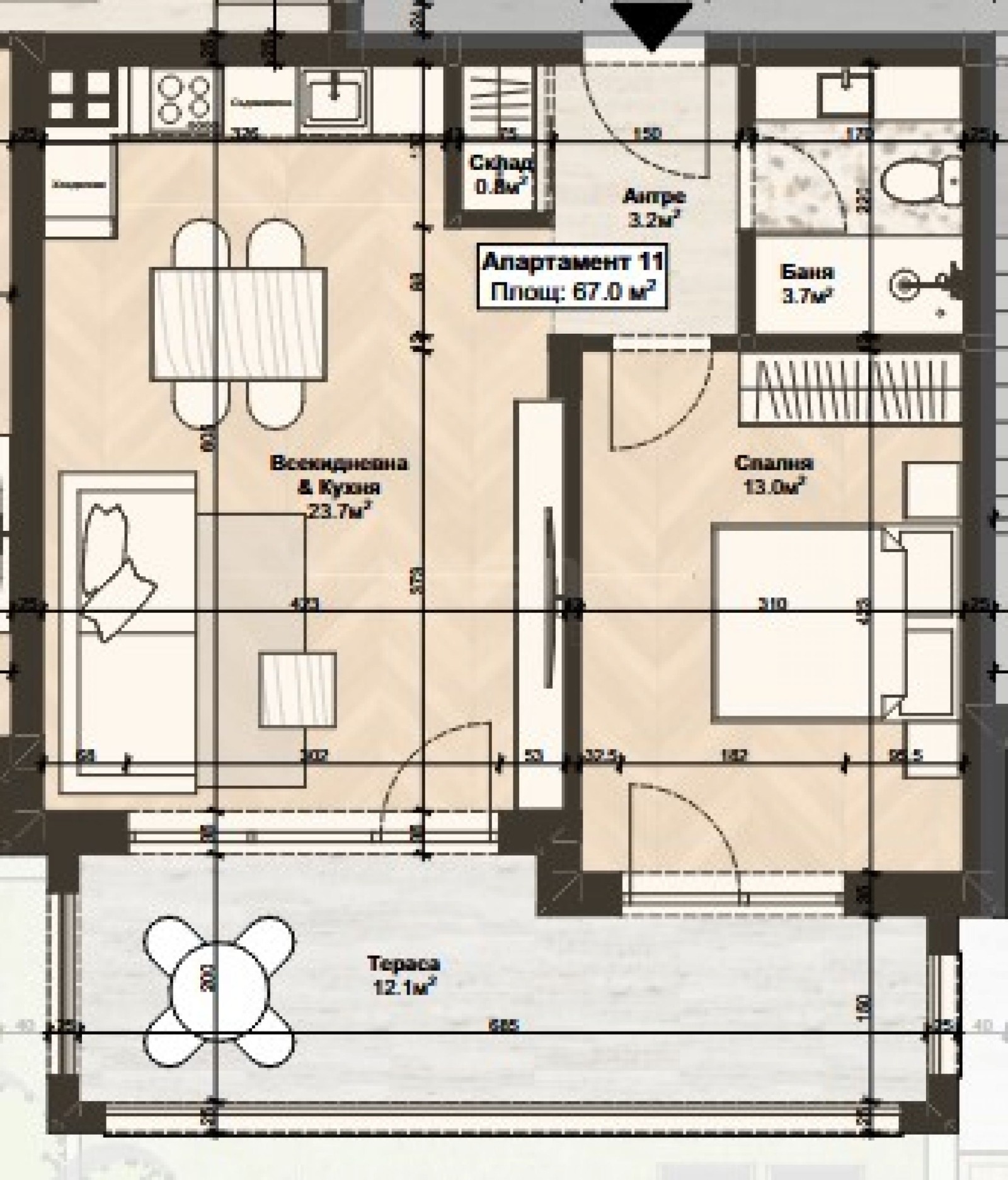
Имотът е с обща площ от 75,65 кв.м, разположен на 2-ри етаж в сграда А, със следното разпределение:
антре;
дневен тракт с кухня;
спалня;
баня с тоалет;
голяма тераса.
Жилището се издава по БДС, на шпакловка и замазка, с премиум материали и мисъл за дълготрайност. Подходящо е както за лично ползване, така и за инвестиция - краткосрочно отдаване или дългосрочен наем.
За комплекса
Комплексът се състои от три сгради, в затворена територия, с проектирани двустайни и тристайни апартаменти, с функционално разпределение, като на партерно ниво към жилищата има прилежащи озеленени дворове. Височината на таваните от 2,90 м и френските прозорци, изпълват пространството със светлина и простор. Паркирането е обезпечено с паркоместа на подземно и наземно ниво на сградата.
Общите части ще бъдат луксозно завършени, отговаряйки на високите стандарти на проекта. На територията ще откриете басейн, зони за отдих, красиво озеленени и павирани алеи, осветени и луксозно завършени площи.
Очакваме Вашето запитване
Ако желаете да организирате оглед на имот, който Ви интересува, или да посетите някой от нашите офиси, моля свържете се с нас. За да уговорите ден и час за среща или ...
Цената на имота е 121 040 евро / 236 733.66 лв. без ДДС или 145 248 евро / 284 080.40 лв. с ДДС. Данъчен кредит може да се ползва при определени условия.
За повече информация свържете се с нас и цитирайте референтния номер на имота. Моля, кажете, че сте видeли обявата в този сайт.
Референтен номер: LXH-134580
Тел: +359 889 007 010
Моб: +359 877 777 888 (WhatsApp, Viber, SMS)
Отговорен брокер:Стоунхард ПРЕМИЪР
Без комисиона от купувача







