Референтен номер: LXH-134937
Предлагаме светъл и уютен двустаен апартамент, разположен в съвременна нова сграда, отличаваща се с елегантна визия, високо качество на изпълнение и внимание към детайла. Имотът се намира в един от най-зелените и предпочитани райони на Бургас ж.к. Зорница , който предлага перфектен баланс между спокойствие, модерна инфраструктура и близост до морския бряг. Локацията осигурява бърз достъп до центъра на града, училища, паркове и удобства за активен и комфортен начин на живот.
Етапи:
В процес на строителство от 08.2025 г.
Планирано завършване - след 24 месеца.
Локация и предимства:
Сградата се намира в район с ограничени възможности за ново строителство, което гарантира устойчива стойност във времето.
Местоположението предлага баланс между комуникативност и спокойствие в близост са центърът на града, Морската градина, основни пътни артерии, детска градина, училище, спортна зала, спирки на градския транспорт и разнообразие от магазини и заведения.
На пешеходно разстояние се намират клиника 4Life, поликлиника, детска клиника и здравни лаборатории, което прави района изключително подходящ за семейства и хора, търсещи комфорт и сигурност.
Характеристики на сградата:
Пет жилищни етажа с двустайни и тристайни имоти, завършени по БДС.
Сутерен с гаражи и паркоместа, осигуряващи удобство и безопасност за собствениците.
Модерна архитектура и енергийно ефективни решения, гарантиращи ниски разходи за поддръжка и отопление.
Висококачествени материали и прецизно строителство стандарт, който осигурява дълготрайна стойност и комфорт.
Характеристики на имота
Разположен на трети жилищен етаж;
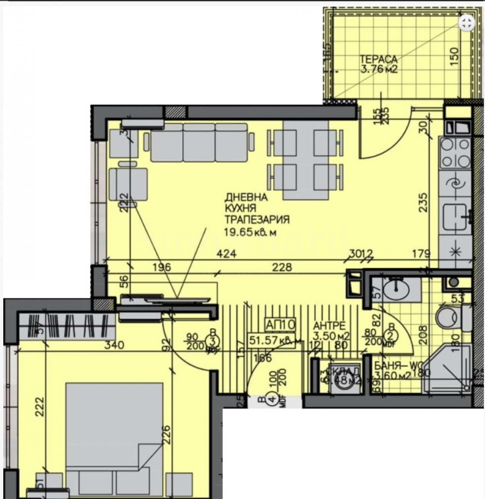
Обща площ: 61.56 кв.м;
Общи части: 10.42 кв.м;
Изложение: изток;
Разпределение: просторна всекидневна с кухня и трапезария, комфортна спалня, баня с тоалетна и тераса.
Предимства:
Съвременна архитектура и елегантна ...
За повече информация свържете се с нас и цитирайте референтния номер на имота. Моля, кажете, че сте видeли обявата в този сайт.
Референтен номер: LXH-134937
Тел: +359 889 007 010
Моб: +359 877 777 888 (WhatsApp, Viber, SMS)
Отговорен брокер:Стоунхард ПРЕМИЪР
Без комисиона от купувача







