Stonehard PREMIER: www.stonehardpremier.bg
Моля, кажете, че сте видeли обявата в този сайт.
Референтен номер: SOF 129081
Представяме Ви двустаен апартамент в енергийно ефективна жилищна сграда с фотоволтаична инсталация, осигуряваща зелена енергия за дома и общите части. Съчетание на иновации, устойчивост и комфорт в престижен район с отлична инфраструктура и комуникации.
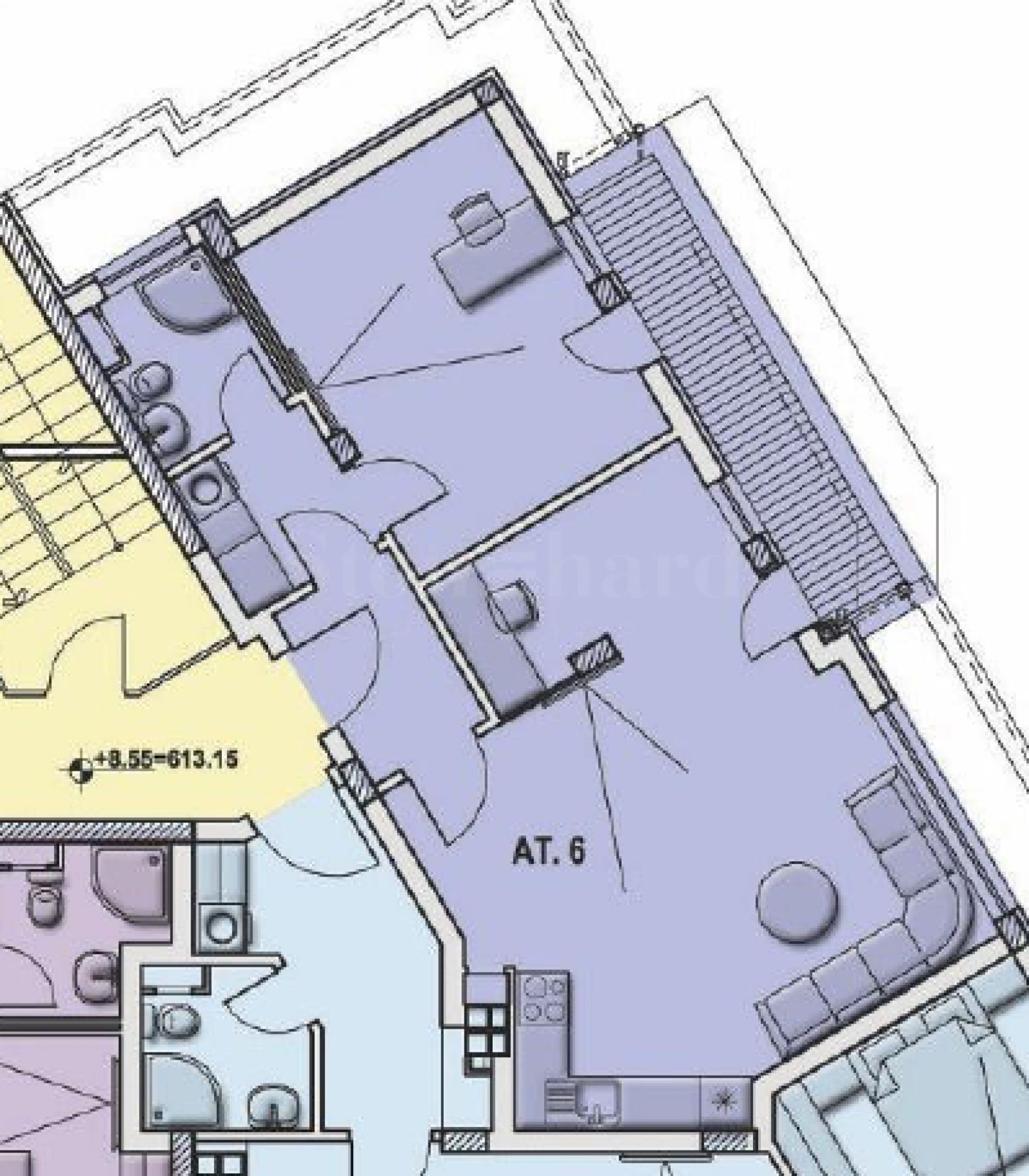
Апартаментът с площ от 85.25кв.м и се състои от антре, хол с кухненски бокс, спалня, баня с тоалетна и тераса, на която се излиза от хола и от спалнята.
Сградата е шестетажна и разполага с общо 9 апартамента и 6 ателиета, проектирани с мисъл за енергийна ефективност и комфорт. Осигурени са 15 паркоместа, както и 8 мазета за допълнително удобство на живущите. Сградата е газифицирана, а отоплението е решено с изградена инсталация с радиатори във всяко помещение.
Фасадата е изпълнена с висококачествени материали, включително фотоволтаична система, която генерира зелена енергия за общите части и домакинствата, осигурявайки по-ниски сметки за електроенергия и по-голяма енергийна независимост.
Жилищата са с просторни и светли помещения, благодарение на френските прозорци и високия таван от 2.70 м. Външната дограма е петкамерна PVC с двоен стъклопакет (24 мм) с технология 4 сезона , което допринася за отлична топло- и шумоизолация.
За удобство на бъдещите собственици е предвиден общ двор, който е оборудван с поливна система, а прилежащите към някои от жилищата дворове са отделени с дискретна дървена ограда.
Сградата е напълно завършена и разполага с Акт 16, което позволява незабавно нанасяне на новите собственици.
Предимства на локацията:
На пешеходно разстояние до:
Южен парк;
Хранителни вериги;
Paradise Center, Bulgaria Mall;
Училища и детски градини;
Медицински центрове и спортни комплекси.
Градски транспорт:
Автобуси;
Тролейбуси;
С връзка към Метростанция (линия М3).
Очакваме Вашето запитване
Ако желаете да организирате оглед на имот, който Ви интересува, или да посетите някой от нашите офиси, моля свържете се с ...
За повече информация свържете се с нас и цитирайте референтния номер на имота. Моля, кажете, че сте видeли обявата в този сайт.
Референтен номер: SOF 129081
Тел: +359 889 007 010
Моб: +359 877 777 888 (WhatsApp, Viber, SMS)
Отговорен брокер:Стоунхард ПРЕМИЪР







