Референтен номер: SOF-129478
Представяме за продажба двустаен апартамент в нова жилищна сграда с модерна визия, в един от перспективните райони, в широкия градски център на София.
В процес на строителство. Очакван Акт 16 - декември 2026 г.
Локация
Локацията на сградата е с отлично развита транспортна, социална, търговска и културна инфраструктура, което е ключов фактор при избора на жилище. В близост до метрото, ключови автобусни, тролейбусни и трамвайни линии, с бързи и удобни връзки към централните и периферни части на града. Районът предлага удобства като магазини, заведения, училища, банки, аптеки и културни институции, което го прави идеален както за живеене, така и за инвестиция.
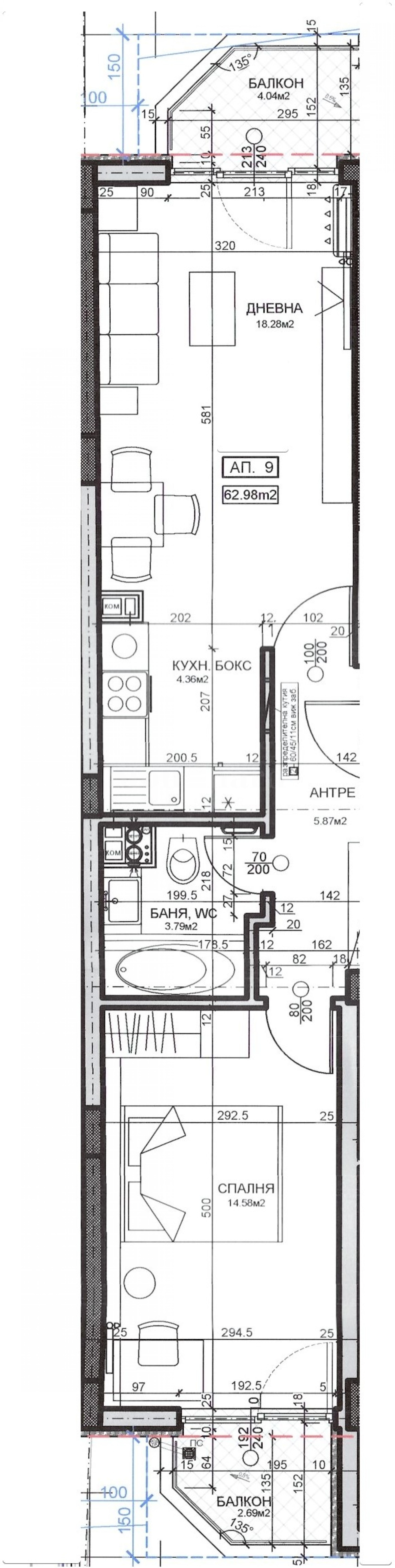
Имотът е с обща площ от 87,25 кв.м, разположен на 5-и етаж с изложение югозапад/североизток. Издава се в степен на завършеност по БДС, на шпакловка и замазка, качествено ново строителство.
Разпределение:
антре/коридор;
дневна с кухня;
спалня;
баня с тоалет;
две тераси.Към жилището има прилежащо избено помещение с площ от 5,28 кв.м.
Допълнителни предимства
големи прозорци осигуряващи изобилие от естествена светлина;
висококачествената дограма с троен стъклопакет и прекъснат термомост;
отопление на ТЕЦ, гарантиращо комфорт и енергийна ефективност.Има възможност за закупуване на закрито паркомясто допълнително.
Схема на плащане:
30% при подписване на предварителен договор;
30% при Акт 14;
30% при издаване на удостоверение по чл.181(груб строеж);
5% при Акт 15;
5% при разрешение за ползване.Очакваме Вашето запитване
Ако желаете да организирате оглед на имот, който Ви интересува, или да посетите някой от нашите офиси, моля свържете се с нас. За да уговорите ден и час за среща или оглед, можете да се обадите на посочения в обявата телефон или да изпратите запитване чрез електронната поща. Нашият консултант ще Ви съдейства с всички необходими подробности и ще уговори удобно за Вас време.
Търсите ...
За повече информация свържете се с нас и цитирайте референтния номер на имота. Моля, кажете, че сте видeли обявата в този сайт.
Референтен номер: SOF-129478
Тел: +359 889 007 010
Моб: +359 877 777 888 (WhatsApp, Viber, SMS)
Отговорен брокер:Стоунхард ПРЕМИЪР







