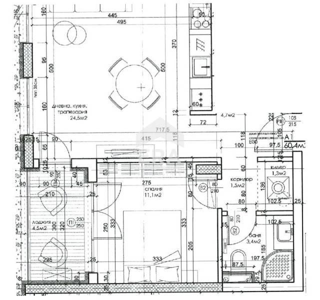
ЕРА Лайф обявява за продажба двустаен апартамент с площ 71,50 кв.м. /застроена площ 61,70 кв.м./ находящ се на трети етаж от шест надземни етажа в новострояща се жилищна сграда. Имотът е със следното разпределение: входно преддверие 4,7 кв.м., коридор 1,5 кв.м., дневен тракт с открита кухненска част 24,5 кв.м., спалня - 11,11 кв.м., излаз на лоджия от дневната 6,00 кв.м., комбинирана баня с тоалетна 3,4 кв.м. Към имота може да бъде закупено допълнително подземно/открито паркомясто /има възможност за паркомясто за хора с увреждания/ и места за велосипеди. Статут: апартамент.
Жилището ще бъде завършено по БДС стандарт-стени: машинно положена гипсова мазилка, под: нивелирана циментова замазка, готова за полагане на подови настилки, таван: машинно положена гипсова мазилка, санитарни помещения: под - циментова замазка, стени машинно положена варо-циментова мазилка, подготвени за полагане на фаянс и теракота,тераса/балкон: циментова замазка с наклон за отводняване, хидроизолация, положен гранитогрес по одобрените технически проекти част. Дограма: шест или седем- камерна ПВЦ или Алуминиева дограма, немски обков, цвят-антрацит и бял, стъклопакет - енерджи/ четири сезонен, 32мм, външни подпрозоречни первази, входна врата: блиндирана, вътрешни интериорни врати: МДФ, климатизация: положена инсталация за климатици - тръбен път и отводняване - конденз, осветителни тела по тераса/балкон. Жилището се продава без обзавеждане.
Недвижимият имот е част от жилищна сграда, с контролиран достъп и домофонна уредба, с луксозни общи части. Функциониращ асансьор. Монолитна сграда: Дограма общи части: шест или седем камерна ПВЦ или алуминиева дограма, немски обков, цвят антрацит и бял, стъклопакет енерджи/четири сезонен, 32мм., пощенски кутии монтирани на входа на сградата, машинно положена гипсова мазилка-стени, машинно положена гипсова мазилка и/или гипсокартон - тавани, ел. ниско енергийно LED осветление по дизайнерски проект плюс стълбищни ключове за управление и ел. табло общи части, видеонаблюдение на общи части и периферия сграда, аварийно осветление по ел. проект, вътрешен парапет-алуминий и триплексово стъкло. Старт на строителството: януари 2026г. Очакван срок на въвеждане в експлоатация: декември 2027г.
Схеми на плащане: 40% на предварителен договор, 30% на Акт 14, 20% на Акт 15 и 10% при въвеждане в експлоатация.
КК Св.Св. Константин и Елена- един от най-търсените, бързо-развиващи се и красиви морски райони за покупка на инвестиционни имоти с цел отдаване под наем или за лично ползване. В близост до хранителен хипермаркет Лидъл. На 100 м. от спирка на градския транспорт. Код: 0708930
Оферта 0708930







