ЕКСКЛУЗИВНО предлагаме двустаен апартамент на етаж 8 от 8 в кв.Владиславово.
Сградата е в строеж и има акт 14.
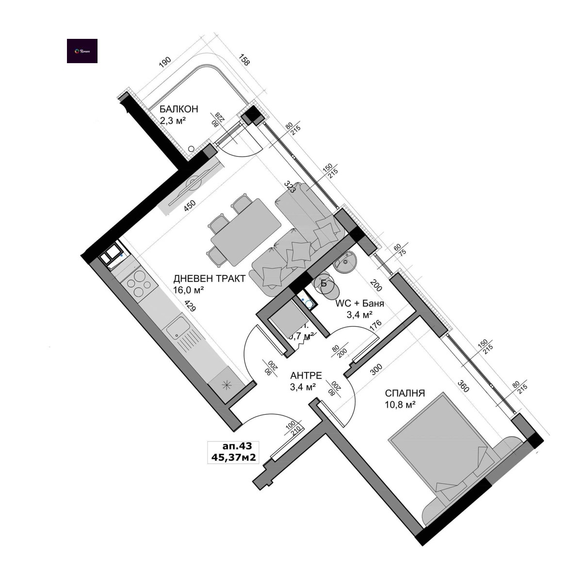
Жилището се състои от коридор,дневна с кухненска част и тераса ,,
спалня,БТ и килер-перално.
Изложението е северо-запад с изглед към града и летището.
Имота с е продава по БДС,като към апартамента има и външно паркомясто,което се предлага
допълнително за 19700 евро.
Фирма РОНЕВА ще ви съдейства с подготовката на документацията ,а при необходимост
и за получаване на банков кредит.
Реф. 50019
www.roneva.bg







