АКТ 14,НОВА СГРАДА,РАЗСРОЧЕНО ПЛАЩАНЕ,ВЪЗМОЖНОСТ ЗА ЗАКУПУВАНЕ НА ПАРКОМЯСТО.
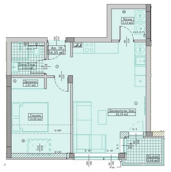
Нова Хоум прелага на Вашето внимание двустаен апартамент в м-т Пчелина ,състоящ се от:
✅Дневна с кухненски кът и прилежаща тераса
✅Спалня
✅Баня и тоалетна
✅Входно антре
✅Килер
Жилището ще бъде завършено по БДС.
Предимства:
✅Разсрочено плащане по време на строителството
✅ Просторни и светли апартаменти
✅ Възможност за закупуване на паркомясто
✅ Спокойна локация и бърз достъп до града.
Нова Хоум съдейства на своите клиенти до нотариалното изповядване на сделката, за отпускане на кредит с преференциални условия към всички водещи банки на пазара, както и за ремонтни и довършителни дейности /завършване до ключ/ на преференциални цени.
За повече информация и огледи: Никол Стойкова +359896916006







