Референтен номер: 3409.
МАЛКА БУТИКОВА СГРАДА САМО С 15 АПАРТАМЕНТА! ДО МЛАДЕЖКИ ХЪЛМ!
Предлагаме ви двустаен апартамент в новострояща се малка и модерна жилищна сграда в близост до Младежки Хълм и Дентален Факултет!
Основни характеристики на имота:
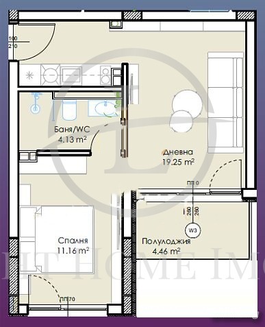
- Площ: 51.74 кв.м
- Разпределение: Хол с кухненски бокс, спалня, баня с тоалетна и тераса
- Вид строителство: Тухла (очакван пусков период през 2028г.)
- Изложение: Юг
- Етажност: 4ет от 5 ет. (асансьор)
- Паркиране: Възможност за закупуване на гараж и паркомясто
Апартаментът се намира в бутикова сграда, която е проектирана с висококачвствени материали, 7 камерна шумоизолационна дограма, зелен вътрешен двор и луксозни общи части! Имотът ще бъде издаден на: шпакловка и замазка, ВиК на тапа, цялостно окабеляване и поставена блиндирана входна врата! Локацията на сградата е в близост до: Младежки хълм, Дентален факултет и Медицински университет! Чудесен имот за закупуване с цел инвестиция за отдаване под наем! В сградата има налични двустайни и тристайни апартаменти, както и гаражи и паркомясто!
За повече информация и организиране на огледи, моля, свържете се с нас на посочения номер, като ще Ви е необходим следният референтен номер: 3409
Лайт Хоум имоти е доверен партньор на най-големите банкови институции в страната и съдейства за преференциални условия при нужда от кредитиране. Ще получите юридическо съдействие през целия процес на сделката, както и съдействие при подготовка, подаване и получаване на всички необходими документи за сделката.







