ЕРА Фаворит продава двустаен апартамент в Люлин 8 в новострояща се сграда от доказан инвеститор.
Характеристики на проекта:
Сградата се състои от един подземен етаж с гаражи, паркоместа, складови помещения и технически зони, осем жилищни етажи и един терасовиден последен етаж. Въвеждане в експлоатация - края на 2028 година. В околността има изобилие от магазини, училища, аптеки, парк. Сградата се изгражда на стратегическа локация в непосредствена близост до водещи пътни артерии, включително метростанция, предоставяйки възможност за бърза връзка с различните части на града. Локацията прави този апартамент еднакво подходящ както за лично ползване, така и като инвестиционна възможност.
Жилищен капацитет:
В комплекса са предвидени общо 59 апартамента - двустайни, тристайни и ателиета, проектирани с внимание към функционалността и уюта на всеки един от тях.
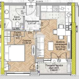
Характеристики на жилището:
Етажност - първи жилищен етаж.
Разпределение - апартаментът разполага със широко предведие, предоставящо достъп до дневна с трапезария и кухненски бокс, спалня със складово отделение и баня с тоалетна, както и покрита тераса с южно изложение.
Изложение - юг
Чиста площ - 48м?
Обща площ - 56м?
Паркомясто - може да се закупи допълнително.
Агенция ЕРА Фаворит е член на НСНИ и администратор на лични данни.
Преди огледа се провежда среща в нашия офис, за да се запознаем с изискванията Ви и за да оформим документи съгласно ЗЗД и ЗМИП.
По време на огледа се подписва Протокол за оглед.
Предлагаме Ви юридическо съдействие през целия процес на покупката.
Агенцията съдейства за безплатна кредитна консултация от CREDITERA - лицензиран финансов брокер към БНБ!
Всеки ERA офис е с независимо управление и собственост!
Оферта 7200360







