📢 0% КОМИСИОН ! - ДИРЕКТНИ ПРОДАЖБИ ОТ ИНВЕСТИТОР!📢
ОФЕРТА : 16692
РАЗСРОЧЕНИ СХЕМИ НА ПЛАЩАНЕ! ⏩ВЪЗМОЖНОСТ ЗА БАНКОВ КРЕДИТ!
⮚ Агенция за недвижими имоти 'ГОЛД ИМОТИ' с удоволствие представя най-новия проект в нашето портфолио две бутикови жилищни сгради на три и четири етажа, отличаващи се с модерен архитектурен стил, висок стандарт на изпълнение и внимание към детайла.
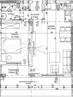
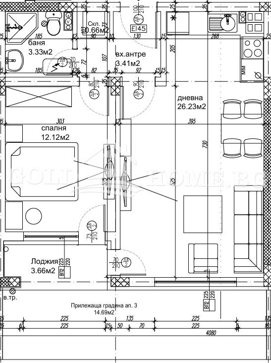
➡️Разпределение :
Входно антре , дневна с трапезария и кухненски бокс /26кв.м./ , спалня., баня с тоалетна , склад ,в който ще бъдат изведени изводи за обособяване на перален кът и веранда с излаз от двете стаи.
☀️ Изложение и Етаж :
-Жилището е с изложение: Запад и е позиционирано на партерния етаж на сградата .
➡️Предимства на партерния етаж :
-Собствено зелено пространство , даващо Ви възможност да направите своята градина,, детски кът или уютно място за релакс на открито
-Удобство за семейства с деца децата могат да играят навън безопасно, без нужда от асансьори и стълби.
-Перфектно за домашни любимци огромен плюс за любителите на животни.
- Лесен и бърз достъп до жилището изключително комфортно за семейства с колички, възрастни хора и хора с ограничена мобилност.
-По-ниска температура през лятото Партерните жилища често са по-прохладни и енергийно ефективни при горещи сезони.
‣ Проектът залага на ниско застрояване, зелени площи и спокоен жилищен комфорт идеалната комбинация за ценителите на качествената градска среда.
‣ Фасадата впечатлява с изчистена визия и елегантна цветова комбинация, допълваща съвременния характер на комплекса.
✨Характеристики и предимства :
‣ Партерни апартаменти с индивидуални дворни пространства.
‣ Във всяко жилище има проектиран склад ,за обособяване на перален кът .
‣ Контролиран достъп чрез бариера
‣ Тиха и зелена жилищна среда
✔️Степен на завършеност :
- Ел. инсталацията с монтирано ел. Табло с ДТЗ, с поставени ключове и контакти;
- Водопроводните и канализационните тръби, изпълнени до тапа с монтирани водомери;
- Положена инсталация за кабелна телевизия и интернет;
- Домофонна система с видео наблюдение.
- Монтирана входна блиндирана врата;
- Фасадната дограма - 5-камерна двуцветна ПВЦ със стъклопакет с мултифункционално стъкло
🅿️Паркиране :
Паркирането в комплексът е осигурено на 100% .
Има възможност за покупка както на партерни гаражи , така и на външни паркоместа .
➡️ Инвеститор :
Доказан и стабилен инвеститор с богат опит и успешно реализирани проекти, гарантиращ качествено изпълнение и високи стандарти.
📌Локация :
- Идеален микс от комфорт, чист въздух и спокойствие усещане, което рядко се среща в градските квартали.
- Достъпът до сградата се осъществява от няколко възможни маршрута .
- В непосредствена близост се намира до 'Via Park' Южен , магазин Mini Mart , няколко основни пътни артерии , както и достатъчно спирки на градския транспорт.
➡️ ГОЛД ИМОТИ Ви предлага да се възползвате от професионално кредитно посредничество чрез Credit Center при ипотека, потребителски кредит и рефинансиране!
-УСЛУГАТА Е ИЗЦЯЛО БЕЗПЛАТНА!
-ИЗГОТВЯНЕ НА НЯКОЛКО ОФЕРТИ ОТ ВОДЕЩИ БАНКИ!
-НАЙ-ИЗГОДНИ УСЛОВИЯ СПРЯМО ВАШИЯТ ПРОФИЛ!
-НЕ Е НЕОБХОДИМО ДА СЕ РАЗКАРВАТЕ ВЪВ ВСЕКИ КЛОН НА РАЗЛИЧНИ БАНКИ!
➡️ Още атрактивни и актуални оферти може да разгледате на нашият сайт: www.goldhome.bg
📞 За повече информация и при интерес за оглед, моля свържете се с нас.







