ARCO REAL ESTATE ПРЕДЛАГА ЗА ПРОДАЖБА 2 -СТАЕН АПАРТАМЕНТ на ул. Георги Русев
Сградата е на тихо и спокойно място. Апартамента е със западно изложение.
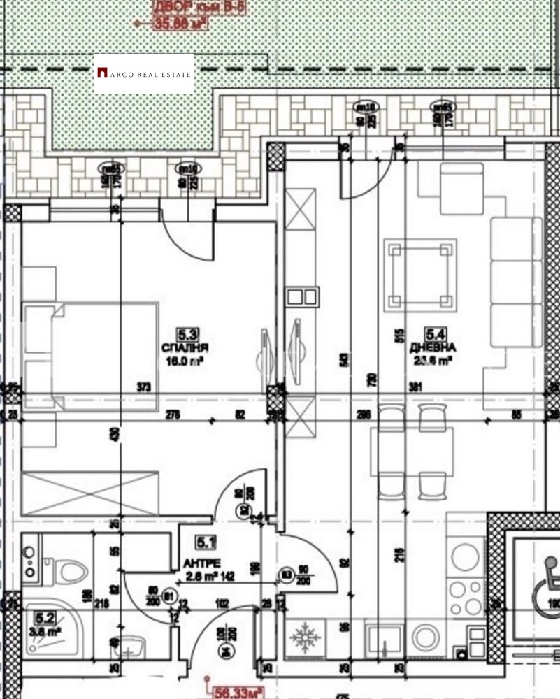
Партерен етаж от общо 4 с обща площ от 65м2 и чиста площ 56м2.
Прилежащ двор към апартамента- 36м2.
Разпределение:
Дневна с кухненски бокс- 25.6м2
Спалня- 16м2
Баня с тоалетна- 4м2
входно антре- 2.6м2
Двор- 36м2
Мазе- 5м2
Етап на строителство- преди акт 16
Възможност за закупуване на подземно паркомясто.
ARCO REAL ESTATE е лицензиран кредитен посредник и оценител, предлагаме съдействие за ипотчено кредитиране
Водещ брокер на обявата: Вайс Сайфи
0878999555







