КОМУНИКАТИВНА ЛОКАЦИЯ!
Предлагаме за продажба двустаен апартамент, разположен в уреден градски район с отлична инфраструктура и бърз достъп до градски транспорт.
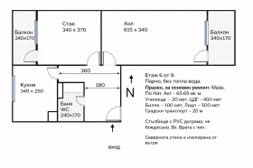
Апартамента е за основен ремонт!
Характеристики на имота:
Площ по нотариален акт: 65,69 кв.м
Състояние: празен, за основен ремонт
Прилежащо мазе
Вход с контролиран достъп (чип)
Локация:
Училище 20 м
Детска градина 400 м
БИЛА 100 м
ЛИДЛ 500 м
Спирка на градски транспорт 20 м



