НИСКОЕТАЖНО СТРОИТЕЛСТВО! ДОКАЗАН СТРОИТЕЛ! РАЗРОЧЕНИ СХЕМИ НА ПЛАЩАНЕ!
Агенция за недвижими имоти ХОУМ МИ ЕСТЕЙТС предлага двустаен апартамент в модерна, новострояща се нискоетажна сграда, разположена в предпочитания и спокоен кв. Беломорски.
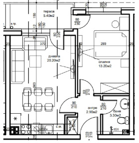
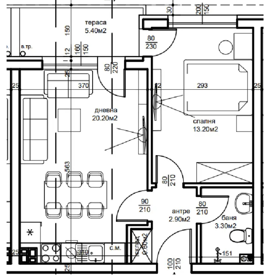
📐 Площ: 60 кв.м
🏗 Срок на завършване: 2027 г.
Разпределение:
входно антре
хол с кухненски бокс
спалня
тераса
баня с WC
Жилището е проектирано с функционално и удобно разпределение, осигуряващо комфорт и светлина във всяко помещение. Сградата се отличава с модерна архитектура, ниско застрояване и качествени материали.
Паркиране: Възможност за покупка на надземни гаражи и паркоместа
Гъвкава и разсрочена схема на плащане, съобразена с нуждите на клиента.
📞 За допълнителна информация и оглед свържете се с нас







