'Monolith Estate' представя, двустаен апартамент в гр. Варна, кв. Свети Никола, в сграда с изключително високо качество на строителство.
Имотът е разположен на 3'ти жилищен етаж с югозападно изложение в 4 етажна сграда с разрешение за строеж.
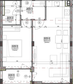
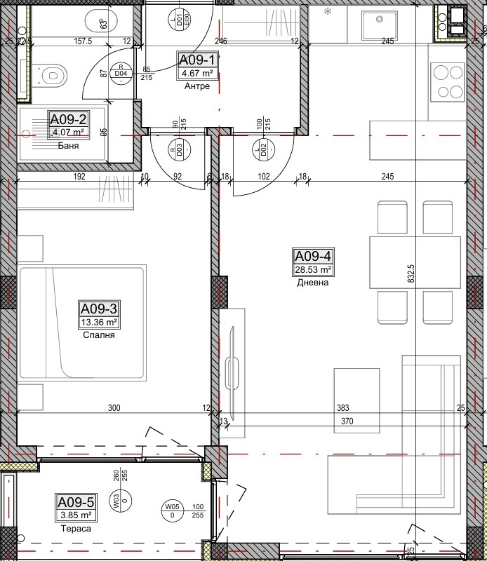
Апартаментът:
Обща площ на жилището - 74,26m²
Чиста площ - 82,08m²
➡️Дневна - 28,53m²
➡️Спалня - 13.36m²
➡️Входно антре - 4,67m²
➡️Баня с тоалетна - 4,07m²
➡️Тераса - 3,85m²
➡️Опция за Изба - 4,28m²
Състояние: Имотът се продава по БДС
Жилищната сграда е съобразена с нормативните изисквания, отговаря на заданието на възложителят, осигурено е и максимано благоприятно разположение по отношение на географските посоки.
Строителство: Висококачествена Алуминиева дограма (Schüco);
Топлоизолация: каменна вата 15см по изолационна система;
Покрив: плосък с изградена паро, хидро и топлоизолационна система;
Входно фоайе: стени комбинация от латекс, гранитогрес.
Таван - латекс;
Стълбище: под и стъпала от есествен камък, парапети от ковано желязо.
Асансъори: високотехнологични, електически, със спирка до всяко ниво на сградата;
Подземен паркинг: настилка от шлайфан бетон с разграфени парко места.
Водопровод: В сградите е проектирана водопроводна инсталация за топла, циркулационна и студена вода. Главните хоризонтални клонове на водопровода и техните разклонения до вертикалните клонове са проектирани открито под тавана на сутерена тип окачена инсталация. Вертикалните клонове ще се положат в мотнажни шахти, а етажните разпределителни кутии ще се вкопаят в стените. Сградната: водопроводна инсталация за студена, топла и циркулационна вода е проектирана от тръби от омрежен полиетилен с алуминиева вложка Radopress Pipe life.
'Монолит Естейт' работи с всички банки на пазара, като предлага съдействие при ипотечно кредитиране за избраният от Вас имот. Имаме възможноста да правим запитване до няколко банки, като отговор се получава в рамките до 2 часа. По този начин Монолит Естейт спестява много време на своите клиенти.
За повече информация:
Monolith Estate
☎+359 898 87 97 60







