ЛУКСОЗНА СГРАДА! ПРОСТОРНИ И СВЕТЛИ ПОМЕЩЕНИЯ! МАЛКА СГРАДА! ПРЕД АКТ 16! кв. ОСТРОМИЛА!
Предлагаме за продажба светъл и просторен двустаен апартамент, разположен на 2-ри етаж от 4 в бутикова луксозна сграда с модерна архитектура, намираща се в един от най-тихите и бързо развиващи се райони на Пловдив кв. Остромила. Сградата е пред Акт 16, изпълнена с висок клас материали и внимание към всеки детайл.
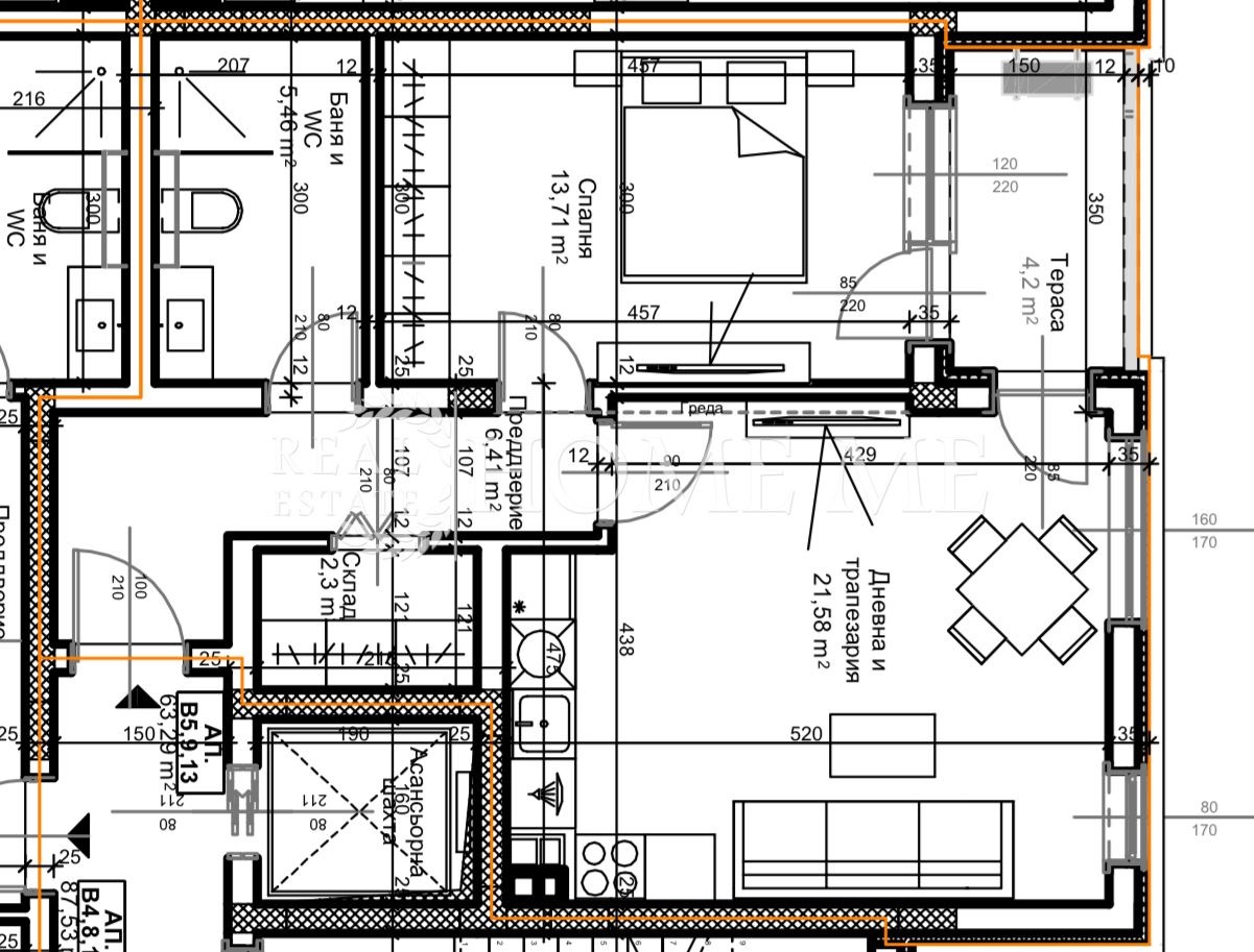
Имотът е с реална площ от 76.55 кв.м и предлага функционално разпределение с просторни помещения, осигуряващи комфорт и удобство както за лично ползване, така и за инвестиция.
Характеристики на имота:
Площ: 76.55 кв.м
Етаж: 2-ри от 4
Малка и отлично поддържана сграда
Просторни и светли помещения
Подходящ за семейство или инвестиция
Локация:
Кварталът е спокоен, зелен и предпочитан, с лесен и бърз достъп до основни пътни артерии, градски транспорт, магазини и нови жилищни комплекси. Отличен избор за хора, търсещи тишина и комфорт, без да се отказват от удобствата на града.
❗ Имот с отличен потенциал в район с високо търсене идеален както за собствен дом, така и за отдаване под наем.
Референтен номер: 124



