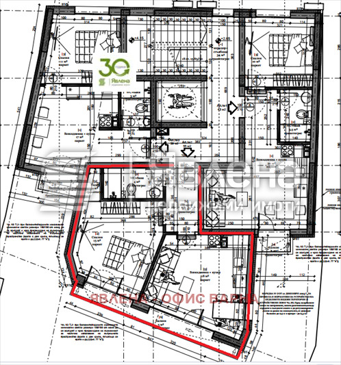
Двустаен апартамент с площ 65.02 кв.м., на втори етаж/първи жилищен/, в нова сграда с гледка към Варненското езеро, модерна архитектура и визия. Енергийна ефективност, постигната чрез съвременни технологии и първокласни материали. Отлична топло-и шумоизолация за максимален домашен комфорт. Апартаментът се състои от дневна с кухненска част, две спални, килер, баня с тоалетна, коридор и две тераси. Изложението е юг. Сградата ще бъде на 5 етажа с подземна, надземна паркозала и външни парко места. Сградата е ситуирана в кв. Погреби . В същата се предлагат и други двустайни апартаменти с различна квадратура, етажност, изложение и цена. Възможност за закупуване на открити или закрити паркоместа и гаражи.
Степен на завършеност по БДС - на шпакловка и замазка, с поставена ПВЦ дограма и блиндирана входна врата. Имотът е подходящ както за живеене, така и за инвестиция.
Районът е с добра локация - пешеходно разстояние до централната градска част. В близост има основно училище, детски градини, търговски обекти, заведения за обществено хранене, Колхозен пазар.
Цената на апартамента остава непроменена от момента на избор до нотариалното прехвърляне на собствеността, което гарантира прозрачност и спокойствие! (yavlenaCOM/164684).







