Титан Пропъртис има удоволствието да Ви представи двустаен апартамент в новострояща се, жилищна сграда в кв. Прослав.
В близост са разположени търговски обекти, детски градини, училище,спирки на автобуси.
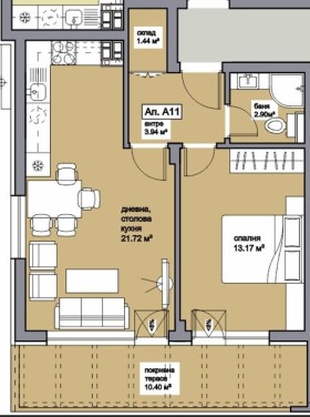
Апартаментът е ситуиран на 4-ти жилищен етаж и разполага с площ от 72 кв.м., разгърната по следния практичен начин: Входно антре, дневна с кухненски бокс, спалня, баня с тоалетна, тераса.
Изложение: Запад/Юг. Сградата разполага с асансьор.
Жилището се предлага на шпакловка и замазка!
Има възможност за закупуване на паркомясто на цена 15 000 евро.
За оглед на това и други атрактивни предложения, не се колебайте да ни потърсите на посочения телефон или да ни изпратите данните си чрез формата за запитване на сайта.
Референтен номер: 1152







