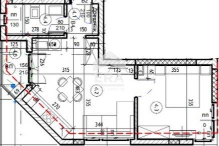
Само в ЕРА Лайф! Обявеният за продажба апартамент с площ 57 кв.м. (застроена площ 50,50 кв.м.) е разположен на втори жилищен етаж в новострояща се четири етажна жилищна сграда. Имотът се състои от: входно антре - 2,31 кв.м., дневен тракт с открит кухненски бокс - 20,58 кв.м., спалня - 12,77 кв.м., баня с тоалетна - 4,16 кв.м. лоджия - 3,23 кв.м. Статут на имота: апартамент.
Изложение на имота: изток. Жилището ще бъде завършено по БДС стандарт - на шпакловка и замазка с поставена ПВЦ дограма и входна блиндирана врата. Продава се без обзавеждане. Отоплението е на ток.
Ексклузивното жилище е част от жилищна сграда, която ще бъде с контролиран достъп и луксозни общи части. В сградата ще функционира автоматичен асансьор. Паркирането е свободно в междублоковото пространство. Етап на строителство (начален етап - първа плоча).Има възможност за закупуване на външно паркомясто за 10000Е.
Кайсиева градина е спокоен и добре уреден квартал във Варна, който разполага с училища, детски градини, магазини и редовен градски транспорт. Подходящ е за семейства и хора, търсещи уют и удобство в ежедневието. Отличава се с просторни междублокови пространства и лесен достъп до центъра и главните булеварди. Код: 0708574
Оферта 0708574







